Warning: Undefined array key "imageBg" in /home/plumsys/public_html/api-prop.plum.systems/api-website/www/templates/ja_property/html/layouts/joomla/content/masthead_property.php on line 34

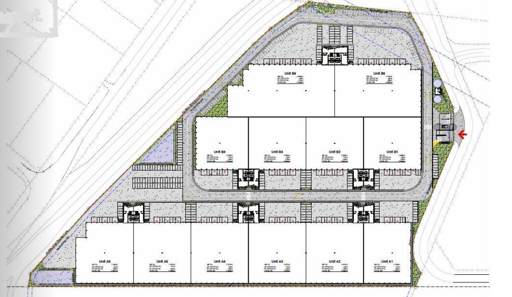
ARTERIAL INDUSTRIAL ESTATE |BLACKHEATH INDUSTRIAL | SPEC DEVELOPMENT TO RENT ON STELLENBOSCH ROAD


Warning: Undefined variable $useDefList4 in /home/plumsys/public_html/api-prop.plum.systems/api-website/www/templates/ja_property/html/layouts/joomla/content/masthead_property.php on line 43
object(stdClass)#10812 (62) { ["id"]=> int(2760) ["asset_id"]=> int(5514) ["title"]=> string(97) "ARTERIAL INDUSTRIAL ESTATE |BLACKHEATH INDUSTRIAL | SPEC DEVELOPMENT TO RENT ON STELLENBOSCH ROAD" ["alias"]=> string(11) "kb3065aieb1" ["introtext"]=> string(1821) "Arterial Industrial Park enjoys a prime location along Stellenbosch Arterial Road, at the heart of the well-established Blackheath industrial area. This modern, high-spec industrial park boasts a variety of advanced industrial units, designed to accommodate a wide range of manufacturing, storage, and logistical needs. With its strategic positioning, the park offers excellent accessibility to key arterial routes such as the R300, N1, N2, and Cape Town International Airport.Spanning a total gross leasable area of approximately 40,000sqm, the development offers unit sizes ranging from 1,862sqm to 12,000sqm, with flexible design options to suit different operational requirements. The park prioritizes security with 24-hour surveillance, controlled access, and a guardhouse, ensuring a secure environment. The units are thoughtfully planned to maximize the office-to-warehouse ratio, creating efficient and functional spaces. Generous yard areas enable easy movement and storage, complemented by fire sprinklers that meet safety standards and a minimum eaves height of 9m for ample vertical space. Units also feature a mix of on-grade and dock-height roller shutter doors for smooth loading and unloading operations.The building is equipped with a 250-amp three-phase power supply and remote metering for consistent electricity provision. Fully sprinkler-protected warehouses adhere to ASIB standards and accommodate free-standing category III goods. Concrete hardstands and a minimum yard depth of 35,320m² provide ample external operational space. The perimeter walls are built with Tilt-up or Bagged Block Work, reinforced with drywall for added safety. Energy-efficient features such as photovoltaic solar panels, LED lighting, and mechanical ventilation emphasize the development's commitment to sustainability." ["fulltext"]=> string(0) "" ["state"]=> int(1) ["catid"]=> int(2465) ["created"]=> string(19) "2025-09-20 09:08:59" ["created_by"]=> int(236) ["created_by_alias"]=> string(0) "" ["modified"]=> string(19) "2025-09-20 09:08:59" ["modified_by"]=> int(236) ["checked_out"]=> NULL ["checked_out_time"]=> NULL ["publish_up"]=> NULL ["publish_down"]=> NULL ["images"]=> string(248) "{"image_intro":"","image_intro_alt":"","float_intro":"","image_intro_caption":"","image_fulltext":"https:\/\/storage.googleapis.com\/api-img\/KB3065AIEB1\/Images\/Image1.jpeg","image_fulltext_alt":"","float_fulltext":"","image_fulltext_caption":""}" ["urls"]=> string(2) "{}" ["attribs"]=> string(13919) "{"ctm_content_type": "gallery", "article_layout": "property", "show_title": "", "ctm_gallery": {"src": ["https://firebasestorage.googleapis.com/v0/b/api-nexus-f7bcd.appspot.com/o/Listings%2FKB3065AIEB1%2FImages%2FImage0.jpeg?alt=media&token=1e06ac4e-990f-46c0-a822-31ee0347a0ee", "https://firebasestorage.googleapis.com/v0/b/api-nexus-f7bcd.appspot.com/o/Listings%2FKB3065AIEB1%2FImages%2FImage1.jpeg?alt=media&token=51e5469b-b5fd-44f9-b60d-8d8f5cee97f2", "https://firebasestorage.googleapis.com/v0/b/api-nexus-f7bcd.appspot.com/o/Listings%2FKB3065AIEB1%2FImages%2FImage31.jpeg?alt=media&token=5b199f21-4935-4a93-86e9-07b23109fbd7", "https://firebasestorage.googleapis.com/v0/b/api-nexus-f7bcd.appspot.com/o/Listings%2FKB3065AIEB1%2FImages%2FImage32.jpeg?alt=media&token=8a349afe-19a3-490b-be42-f7a26212c82a", "https://firebasestorage.googleapis.com/v0/b/api-nexus-f7bcd.appspot.com/o/Listings%2FKB3065AIEB1%2FImages%2FImage18.jpeg?alt=media&token=a7e815e1-4efd-4d7e-ad75-d943dd1cc855", "https://firebasestorage.googleapis.com/v0/b/api-nexus-f7bcd.appspot.com/o/Listings%2FKB3065AIEB1%2FImages%2FImage33.jpeg?alt=media&token=f431a1c8-6fbe-4329-bce7-2992b707f2ca", "https://firebasestorage.googleapis.com/v0/b/api-nexus-f7bcd.appspot.com/o/Listings%2FKB3065AIEB1%2FImages%2FImage34.jpeg?alt=media&token=6f417ca8-bb74-463a-b69e-46be1422c183", "https://firebasestorage.googleapis.com/v0/b/api-nexus-f7bcd.appspot.com/o/Listings%2FKB3065AIEB1%2FImages%2FImage35.jpeg?alt=media&token=27b772d0-7f01-4dbd-a3de-e743f3637572", "https://firebasestorage.googleapis.com/v0/b/api-nexus-f7bcd.appspot.com/o/Listings%2FKB3065AIEB1%2FImages%2FImage11.jpeg?alt=media&token=c72d2077-70e7-462a-80db-8fd3a0c12e51", "https://firebasestorage.googleapis.com/v0/b/api-nexus-f7bcd.appspot.com/o/Listings%2FKB3065AIEB1%2FImages%2FImage36.jpeg?alt=media&token=881bf2a9-d033-4ca6-a9c2-394a6aef402f", "https://firebasestorage.googleapis.com/v0/b/api-nexus-f7bcd.appspot.com/o/Listings%2FKB3065AIEB1%2FImages%2FImage37.jpeg?alt=media&token=cf3a3239-4bb1-4805-af2e-87ef7c17f84d", "https://firebasestorage.googleapis.com/v0/b/api-nexus-f7bcd.appspot.com/o/Listings%2FKB3065AIEB1%2FImages%2FImage38.jpeg?alt=media&token=936019f3-4200-4712-9a8f-066a3e701857", "https://firebasestorage.googleapis.com/v0/b/api-nexus-f7bcd.appspot.com/o/Listings%2FKB3065AIEB1%2FImages%2FImage25.jpeg?alt=media&token=2464b2c7-d4d4-473a-acf2-af906f97196a", "https://firebasestorage.googleapis.com/v0/b/api-nexus-f7bcd.appspot.com/o/Listings%2FKB3065AIEB1%2FImages%2FImage4.jpeg?alt=media&token=8e9b59c9-42db-4e45-b2e5-621bae3d0e1c", "https://firebasestorage.googleapis.com/v0/b/api-nexus-f7bcd.appspot.com/o/Listings%2FKB3065AIEB1%2FImages%2FImage5.jpeg?alt=media&token=c3f36644-4233-4a98-a251-75ca0d06a465", "https://firebasestorage.googleapis.com/v0/b/api-nexus-f7bcd.appspot.com/o/Listings%2FKB3065AIEB1%2FImages%2FImage6.jpeg?alt=media&token=9da63f47-4d7b-442d-8508-18dd782ea283", "https://firebasestorage.googleapis.com/v0/b/api-nexus-f7bcd.appspot.com/o/Listings%2FKB3065AIEB1%2FImages%2FImage19.jpeg?alt=media&token=0d1fbaa3-ac13-4b7b-bca9-14e5aba7d3a3", "https://firebasestorage.googleapis.com/v0/b/api-nexus-f7bcd.appspot.com/o/Listings%2FKB3065AIEB1%2FImages%2FImage7.jpeg?alt=media&token=56bdbc74-8198-47b0-a67a-3eb732fe67f0", "https://firebasestorage.googleapis.com/v0/b/api-nexus-f7bcd.appspot.com/o/Listings%2FKB3065AIEB1%2FImages%2FImage8.jpeg?alt=media&token=e2b4607a-48bb-4277-b94e-463cf3939bff", "https://firebasestorage.googleapis.com/v0/b/api-nexus-f7bcd.appspot.com/o/Listings%2FKB3065AIEB1%2FImages%2FImage9.jpeg?alt=media&token=c69ce48c-f0a8-4afd-9b45-efc6fda0a751", "https://firebasestorage.googleapis.com/v0/b/api-nexus-f7bcd.appspot.com/o/Listings%2FKB3065AIEB1%2FImages%2FImage12.jpeg?alt=media&token=74d2d669-5c5f-4f2d-8d0e-da5bfd9f0d95", "https://firebasestorage.googleapis.com/v0/b/api-nexus-f7bcd.appspot.com/o/Listings%2FKB3065AIEB1%2FImages%2FImage13.jpeg?alt=media&token=8d0b17c0-dfb0-486a-bcb6-2c9dcafae88a", "https://firebasestorage.googleapis.com/v0/b/api-nexus-f7bcd.appspot.com/o/Listings%2FKB3065AIEB1%2FImages%2FImage14.jpeg?alt=media&token=400d03f5-3c59-410d-a380-8d400d92fd32", "https://firebasestorage.googleapis.com/v0/b/api-nexus-f7bcd.appspot.com/o/Listings%2FKB3065AIEB1%2FImages%2FImage26.jpeg?alt=media&token=7e124605-9667-44b7-beae-0fe440d59922", "https://firebasestorage.googleapis.com/v0/b/api-nexus-f7bcd.appspot.com/o/Listings%2FKB3065AIEB1%2FImages%2FImage15.jpeg?alt=media&token=516ad960-19ea-458c-afe5-62405aeae99c", "https://firebasestorage.googleapis.com/v0/b/api-nexus-f7bcd.appspot.com/o/Listings%2FKB3065AIEB1%2FImages%2FImage16.jpeg?alt=media&token=14c1579f-689a-4ded-939e-9c6050b5aab7", "https://firebasestorage.googleapis.com/v0/b/api-nexus-f7bcd.appspot.com/o/Listings%2FKB3065AIEB1%2FImages%2FImage17.jpeg?alt=media&token=da46008a-ea34-443a-a686-c94db123ddad", "https://firebasestorage.googleapis.com/v0/b/api-nexus-f7bcd.appspot.com/o/Listings%2FKB3065AIEB1%2FImages%2FImage2.jpeg?alt=media&token=96ab13ab-ca63-42c9-a891-fa619c9d04ac", "https://firebasestorage.googleapis.com/v0/b/api-nexus-f7bcd.appspot.com/o/Listings%2FKB3065AIEB1%2FImages%2FImage20.jpeg?alt=media&token=fd507942-50c1-4681-b897-dc0e54af9875", "https://firebasestorage.googleapis.com/v0/b/api-nexus-f7bcd.appspot.com/o/Listings%2FKB3065AIEB1%2FImages%2FImage21.jpeg?alt=media&token=cb33902d-e9c4-4d0d-8f58-3ef700c53cc2", "https://firebasestorage.googleapis.com/v0/b/api-nexus-f7bcd.appspot.com/o/Listings%2FKB3065AIEB1%2FImages%2FImage22.jpeg?alt=media&token=f8294ee8-4902-4fca-b777-a3e170a33636", "https://firebasestorage.googleapis.com/v0/b/api-nexus-f7bcd.appspot.com/o/Listings%2FKB3065AIEB1%2FImages%2FImage23.jpeg?alt=media&token=4e8138b9-90a5-487f-8d65-c8db1f7dd2d5", "https://firebasestorage.googleapis.com/v0/b/api-nexus-f7bcd.appspot.com/o/Listings%2FKB3065AIEB1%2FImages%2FImage24.jpeg?alt=media&token=18c0ce4a-b032-47a2-8c2d-bc8c0a371239", "https://firebasestorage.googleapis.com/v0/b/api-nexus-f7bcd.appspot.com/o/Listings%2FKB3065AIEB1%2FImages%2FImage10.jpeg?alt=media&token=ba5999ac-dbf0-48db-a4d1-253aac28c71b", "https://firebasestorage.googleapis.com/v0/b/api-nexus-f7bcd.appspot.com/o/Listings%2FKB3065AIEB1%2FImages%2FImage27.jpeg?alt=media&token=b2a8bb37-70dc-4aa4-8695-6e64594fdcfd", "https://firebasestorage.googleapis.com/v0/b/api-nexus-f7bcd.appspot.com/o/Listings%2FKB3065AIEB1%2FImages%2FImage28.jpeg?alt=media&token=ef170bbe-f38b-4e74-898d-8265e7b256ad", "https://firebasestorage.googleapis.com/v0/b/api-nexus-f7bcd.appspot.com/o/Listings%2FKB3065AIEB1%2FImages%2FImage29.jpeg?alt=media&token=e6c5c727-e742-4cc4-8a08-76e772d0a820", "https://firebasestorage.googleapis.com/v0/b/api-nexus-f7bcd.appspot.com/o/Listings%2FKB3065AIEB1%2FImages%2FImage3.jpeg?alt=media&token=e25e43a3-e38e-47cc-9571-e73f29a4d2a0", "https://firebasestorage.googleapis.com/v0/b/api-nexus-f7bcd.appspot.com/o/Listings%2FKB3065AIEB1%2FImages%2FImage30.jpeg?alt=media&token=9fd0bf12-5969-45b5-8b38-b1a25b5b0db3", "https://firebasestorage.googleapis.com/v0/b/api-nexus-f7bcd.appspot.com/o/Listings%2FKB3065AIEB1%2FImages%2FImage0.jpeg?alt=media&token=1e06ac4e-990f-46c0-a822-31ee0347a0ee", "https://firebasestorage.googleapis.com/v0/b/api-nexus-f7bcd.appspot.com/o/Listings%2FKB3065AIEB1%2FImages%2FImage1.jpeg?alt=media&token=51e5469b-b5fd-44f9-b60d-8d8f5cee97f2", "https://firebasestorage.googleapis.com/v0/b/api-nexus-f7bcd.appspot.com/o/Listings%2FKB3065AIEB1%2FImages%2FImage31.jpeg?alt=media&token=5b199f21-4935-4a93-86e9-07b23109fbd7", "https://firebasestorage.googleapis.com/v0/b/api-nexus-f7bcd.appspot.com/o/Listings%2FKB3065AIEB1%2FImages%2FImage32.jpeg?alt=media&token=8a349afe-19a3-490b-be42-f7a26212c82a", "https://firebasestorage.googleapis.com/v0/b/api-nexus-f7bcd.appspot.com/o/Listings%2FKB3065AIEB1%2FImages%2FImage18.jpeg?alt=media&token=a7e815e1-4efd-4d7e-ad75-d943dd1cc855", "https://firebasestorage.googleapis.com/v0/b/api-nexus-f7bcd.appspot.com/o/Listings%2FKB3065AIEB1%2FImages%2FImage33.jpeg?alt=media&token=f431a1c8-6fbe-4329-bce7-2992b707f2ca", "https://firebasestorage.googleapis.com/v0/b/api-nexus-f7bcd.appspot.com/o/Listings%2FKB3065AIEB1%2FImages%2FImage34.jpeg?alt=media&token=6f417ca8-bb74-463a-b69e-46be1422c183", "https://firebasestorage.googleapis.com/v0/b/api-nexus-f7bcd.appspot.com/o/Listings%2FKB3065AIEB1%2FImages%2FImage35.jpeg?alt=media&token=27b772d0-7f01-4dbd-a3de-e743f3637572", "https://firebasestorage.googleapis.com/v0/b/api-nexus-f7bcd.appspot.com/o/Listings%2FKB3065AIEB1%2FImages%2FImage11.jpeg?alt=media&token=c72d2077-70e7-462a-80db-8fd3a0c12e51", "https://firebasestorage.googleapis.com/v0/b/api-nexus-f7bcd.appspot.com/o/Listings%2FKB3065AIEB1%2FImages%2FImage36.jpeg?alt=media&token=881bf2a9-d033-4ca6-a9c2-394a6aef402f", "https://firebasestorage.googleapis.com/v0/b/api-nexus-f7bcd.appspot.com/o/Listings%2FKB3065AIEB1%2FImages%2FImage37.jpeg?alt=media&token=cf3a3239-4bb1-4805-af2e-87ef7c17f84d", "https://firebasestorage.googleapis.com/v0/b/api-nexus-f7bcd.appspot.com/o/Listings%2FKB3065AIEB1%2FImages%2FImage38.jpeg?alt=media&token=936019f3-4200-4712-9a8f-066a3e701857", "https://firebasestorage.googleapis.com/v0/b/api-nexus-f7bcd.appspot.com/o/Listings%2FKB3065AIEB1%2FImages%2FImage25.jpeg?alt=media&token=2464b2c7-d4d4-473a-acf2-af906f97196a", "https://firebasestorage.googleapis.com/v0/b/api-nexus-f7bcd.appspot.com/o/Listings%2FKB3065AIEB1%2FImages%2FImage4.jpeg?alt=media&token=8e9b59c9-42db-4e45-b2e5-621bae3d0e1c", "https://firebasestorage.googleapis.com/v0/b/api-nexus-f7bcd.appspot.com/o/Listings%2FKB3065AIEB1%2FImages%2FImage5.jpeg?alt=media&token=c3f36644-4233-4a98-a251-75ca0d06a465", "https://firebasestorage.googleapis.com/v0/b/api-nexus-f7bcd.appspot.com/o/Listings%2FKB3065AIEB1%2FImages%2FImage6.jpeg?alt=media&token=9da63f47-4d7b-442d-8508-18dd782ea283", "https://firebasestorage.googleapis.com/v0/b/api-nexus-f7bcd.appspot.com/o/Listings%2FKB3065AIEB1%2FImages%2FImage19.jpeg?alt=media&token=0d1fbaa3-ac13-4b7b-bca9-14e5aba7d3a3", "https://firebasestorage.googleapis.com/v0/b/api-nexus-f7bcd.appspot.com/o/Listings%2FKB3065AIEB1%2FImages%2FImage7.jpeg?alt=media&token=56bdbc74-8198-47b0-a67a-3eb732fe67f0", "https://firebasestorage.googleapis.com/v0/b/api-nexus-f7bcd.appspot.com/o/Listings%2FKB3065AIEB1%2FImages%2FImage8.jpeg?alt=media&token=e2b4607a-48bb-4277-b94e-463cf3939bff", "https://firebasestorage.googleapis.com/v0/b/api-nexus-f7bcd.appspot.com/o/Listings%2FKB3065AIEB1%2FImages%2FImage9.jpeg?alt=media&token=c69ce48c-f0a8-4afd-9b45-efc6fda0a751", "https://firebasestorage.googleapis.com/v0/b/api-nexus-f7bcd.appspot.com/o/Listings%2FKB3065AIEB1%2FImages%2FImage12.jpeg?alt=media&token=74d2d669-5c5f-4f2d-8d0e-da5bfd9f0d95", "https://firebasestorage.googleapis.com/v0/b/api-nexus-f7bcd.appspot.com/o/Listings%2FKB3065AIEB1%2FImages%2FImage13.jpeg?alt=media&token=8d0b17c0-dfb0-486a-bcb6-2c9dcafae88a", "https://firebasestorage.googleapis.com/v0/b/api-nexus-f7bcd.appspot.com/o/Listings%2FKB3065AIEB1%2FImages%2FImage14.jpeg?alt=media&token=400d03f5-3c59-410d-a380-8d400d92fd32", "https://firebasestorage.googleapis.com/v0/b/api-nexus-f7bcd.appspot.com/o/Listings%2FKB3065AIEB1%2FImages%2FImage26.jpeg?alt=media&token=7e124605-9667-44b7-beae-0fe440d59922", "https://firebasestorage.googleapis.com/v0/b/api-nexus-f7bcd.appspot.com/o/Listings%2FKB3065AIEB1%2FImages%2FImage15.jpeg?alt=media&token=516ad960-19ea-458c-afe5-62405aeae99c", "https://firebasestorage.googleapis.com/v0/b/api-nexus-f7bcd.appspot.com/o/Listings%2FKB3065AIEB1%2FImages%2FImage16.jpeg?alt=media&token=14c1579f-689a-4ded-939e-9c6050b5aab7", "https://firebasestorage.googleapis.com/v0/b/api-nexus-f7bcd.appspot.com/o/Listings%2FKB3065AIEB1%2FImages%2FImage17.jpeg?alt=media&token=da46008a-ea34-443a-a686-c94db123ddad", "https://firebasestorage.googleapis.com/v0/b/api-nexus-f7bcd.appspot.com/o/Listings%2FKB3065AIEB1%2FImages%2FImage2.jpeg?alt=media&token=96ab13ab-ca63-42c9-a891-fa619c9d04ac", "https://firebasestorage.googleapis.com/v0/b/api-nexus-f7bcd.appspot.com/o/Listings%2FKB3065AIEB1%2FImages%2FImage20.jpeg?alt=media&token=fd507942-50c1-4681-b897-dc0e54af9875", "https://firebasestorage.googleapis.com/v0/b/api-nexus-f7bcd.appspot.com/o/Listings%2FKB3065AIEB1%2FImages%2FImage21.jpeg?alt=media&token=cb33902d-e9c4-4d0d-8f58-3ef700c53cc2", "https://firebasestorage.googleapis.com/v0/b/api-nexus-f7bcd.appspot.com/o/Listings%2FKB3065AIEB1%2FImages%2FImage22.jpeg?alt=media&token=f8294ee8-4902-4fca-b777-a3e170a33636", "https://firebasestorage.googleapis.com/v0/b/api-nexus-f7bcd.appspot.com/o/Listings%2FKB3065AIEB1%2FImages%2FImage23.jpeg?alt=media&token=4e8138b9-90a5-487f-8d65-c8db1f7dd2d5", "https://firebasestorage.googleapis.com/v0/b/api-nexus-f7bcd.appspot.com/o/Listings%2FKB3065AIEB1%2FImages%2FImage24.jpeg?alt=media&token=18c0ce4a-b032-47a2-8c2d-bc8c0a371239", "https://firebasestorage.googleapis.com/v0/b/api-nexus-f7bcd.appspot.com/o/Listings%2FKB3065AIEB1%2FImages%2FImage10.jpeg?alt=media&token=ba5999ac-dbf0-48db-a4d1-253aac28c71b", "https://firebasestorage.googleapis.com/v0/b/api-nexus-f7bcd.appspot.com/o/Listings%2FKB3065AIEB1%2FImages%2FImage27.jpeg?alt=media&token=b2a8bb37-70dc-4aa4-8695-6e64594fdcfd", "https://firebasestorage.googleapis.com/v0/b/api-nexus-f7bcd.appspot.com/o/Listings%2FKB3065AIEB1%2FImages%2FImage28.jpeg?alt=media&token=ef170bbe-f38b-4e74-898d-8265e7b256ad", "https://firebasestorage.googleapis.com/v0/b/api-nexus-f7bcd.appspot.com/o/Listings%2FKB3065AIEB1%2FImages%2FImage29.jpeg?alt=media&token=e6c5c727-e742-4cc4-8a08-76e772d0a820", "https://firebasestorage.googleapis.com/v0/b/api-nexus-f7bcd.appspot.com/o/Listings%2FKB3065AIEB1%2FImages%2FImage3.jpeg?alt=media&token=e25e43a3-e38e-47cc-9571-e73f29a4d2a0", "https://firebasestorage.googleapis.com/v0/b/api-nexus-f7bcd.appspot.com/o/Listings%2FKB3065AIEB1%2FImages%2FImage30.jpeg?alt=media&token=9fd0bf12-5969-45b5-8b38-b1a25b5b0db3"], "class": [], "caption": []}}" ["version"]=> int(1) ["ordering"]=> NULL ["metakey"]=> string(21) "Blackheath Industrial" ["metadesc"]=> string(0) "" ["access"]=> int(1) ["hits"]=> int(3) ["metadata"]=> object(Joomla\Registry\Registry)#10807 (3) { ["data":protected]=> object(stdClass)#10804 (0) { } ["initialized":protected]=> bool(true) ["separator":protected]=> string(1) "." } ["featured"]=> int(0) ["language"]=> string(1) "*" ["featured_up"]=> NULL ["featured_down"]=> NULL ["category_title"]=> string(21) "Blackheath Industrial" ["category_alias"]=> string(5) "17443" ["category_access"]=> int(1) ["category_language"]=> string(1) "*" ["author"]=> string(12) "Kevin Barret" ["parent_title"]=> string(12) "Western Cape" ["parent_id"]=> int(593) ["parent_route"]=> string(23) "properties/western-cape" ["parent_alias"]=> string(12) "western-cape" ["parent_language"]=> string(1) "*" ["rating"]=> NULL ["rating_count"]=> NULL ["params"]=> object(Joomla\Registry\Registry)#10806 (3) { ["data":protected]=> object(stdClass)#10780 (106) { ["article_layout"]=> string(8) "property" ["show_title"]=> string(1) "1" ["link_titles"]=> string(1) "1" ["show_intro"]=> string(1) "1" ["info_block_position"]=> string(1) "0" ["info_block_show_title"]=> string(1) "1" ["show_category"]=> string(1) "1" ["link_category"]=> string(1) "1" ["show_parent_category"]=> string(1) "0" ["link_parent_category"]=> string(1) "0" ["show_associations"]=> string(1) "0" ["flags"]=> string(1) "1" ["show_author"]=> string(1) "1" ["link_author"]=> string(1) "1" ["show_create_date"]=> string(1) "0" ["show_modify_date"]=> string(1) "0" ["show_publish_date"]=> string(1) "1" ["show_item_navigation"]=> string(1) "1" ["show_readmore"]=> string(1) "1" ["show_readmore_title"]=> string(1) "0" ["readmore_limit"]=> int(100) ["show_tags"]=> string(1) "1" ["record_hits"]=> string(1) "1" ["show_hits"]=> string(1) "0" ["show_noauth"]=> string(1) "0" ["urls_position"]=> int(0) ["captcha"]=> string(0) "" ["show_publishing_options"]=> string(1) "1" ["show_article_options"]=> string(1) "1" ["show_configure_edit_options"]=> string(1) "1" ["show_permissions"]=> string(1) "1" ["show_associations_edit"]=> string(1) "1" ["save_history"]=> string(1) "1" ["history_limit"]=> int(10) ["show_urls_images_frontend"]=> string(1) "0" ["show_urls_images_backend"]=> string(1) "1" ["targeta"]=> int(0) ["targetb"]=> int(0) ["targetc"]=> int(0) ["float_intro"]=> string(4) "left" ["float_fulltext"]=> string(4) "left" ["category_layout"]=> string(6) "_:blog" ["show_category_title"]=> string(1) "0" ["show_description"]=> string(1) "0" ["show_description_image"]=> string(1) "0" ["maxLevel"]=> string(1) "1" ["show_empty_categories"]=> string(1) "0" ["show_no_articles"]=> string(1) "1" ["show_category_heading_title_text"]=> string(1) "1" ["show_subcat_desc"]=> string(1) "1" ["show_cat_num_articles"]=> string(1) "0" ["show_cat_tags"]=> string(1) "1" ["show_base_description"]=> string(1) "1" ["maxLevelcat"]=> string(2) "-1" ["show_empty_categories_cat"]=> string(1) "0" ["show_subcat_desc_cat"]=> string(1) "1" ["show_cat_num_articles_cat"]=> string(1) "1" ["num_leading_articles"]=> int(1) ["blog_class_leading"]=> string(0) "" ["num_intro_articles"]=> int(4) ["blog_class"]=> string(0) "" ["num_columns"]=> int(2) ["multi_column_order"]=> string(1) "0" ["num_links"]=> int(4) ["show_subcategory_content"]=> string(2) "-1" ["link_intro_image"]=> string(1) "0" ["show_pagination_limit"]=> string(1) "1" ["filter_field"]=> string(4) "hide" ["show_headings"]=> string(1) "1" ["list_show_date"]=> string(1) "0" ["date_format"]=> string(0) "" ["list_show_hits"]=> string(1) "1" ["list_show_author"]=> string(1) "1" ["display_num"]=> string(2) "10" ["orderby_pri"]=> string(5) "order" ["orderby_sec"]=> string(5) "rdate" ["order_date"]=> string(9) "published" ["show_pagination"]=> string(1) "2" ["show_pagination_results"]=> string(1) "1" ["show_featured"]=> string(4) "show" ["show_feed_link"]=> string(1) "1" ["feed_summary"]=> string(1) "0" ["feed_show_readmore"]=> string(1) "0" ["sef_ids"]=> int(0) ["custom_fields_enable"]=> string(1) "1" ["workflow_enabled"]=> string(1) "0" ["jact_img_enabled"]=> string(1) "0" ["jact_img_dir"]=> string(10) "media/jact" ["jact_img_big_width"]=> string(3) "500" ["jact_img_big_height"]=> string(3) "500" ["jact_img_medium_width"]=> string(3) "300" ["jact_img_medium_height"]=> string(3) "300" ["jact_img_small_width"]=> string(3) "100" ["jact_img_small_height"]=> string(3) "100" ["show_page_heading"]=> int(0) ["layout_type"]=> string(4) "blog" ["menu_text"]=> int(1) ["menu_show"]=> int(0) ["menu-filter"]=> string(3) "125" ["page_title"]=> string(13) "Category Blog" ["page_description"]=> NULL ["page_rights"]=> NULL ["robots"]=> string(17) "noindex, nofollow" ["ctm_content_type"]=> string(7) "gallery" ["ctm_gallery"]=> array(3) { ["src"]=> array(78) { [0]=> string(172) "https://firebasestorage.googleapis.com/v0/b/api-nexus-f7bcd.appspot.com/o/Listings%2FKB3065AIEB1%2FImages%2FImage0.jpeg?alt=media&token=1e06ac4e-990f-46c0-a822-31ee0347a0ee" [1]=> string(172) "https://firebasestorage.googleapis.com/v0/b/api-nexus-f7bcd.appspot.com/o/Listings%2FKB3065AIEB1%2FImages%2FImage1.jpeg?alt=media&token=51e5469b-b5fd-44f9-b60d-8d8f5cee97f2" [2]=> string(173) "https://firebasestorage.googleapis.com/v0/b/api-nexus-f7bcd.appspot.com/o/Listings%2FKB3065AIEB1%2FImages%2FImage31.jpeg?alt=media&token=5b199f21-4935-4a93-86e9-07b23109fbd7" [3]=> string(173) "https://firebasestorage.googleapis.com/v0/b/api-nexus-f7bcd.appspot.com/o/Listings%2FKB3065AIEB1%2FImages%2FImage32.jpeg?alt=media&token=8a349afe-19a3-490b-be42-f7a26212c82a" [4]=> string(173) "https://firebasestorage.googleapis.com/v0/b/api-nexus-f7bcd.appspot.com/o/Listings%2FKB3065AIEB1%2FImages%2FImage18.jpeg?alt=media&token=a7e815e1-4efd-4d7e-ad75-d943dd1cc855" [5]=> string(173) "https://firebasestorage.googleapis.com/v0/b/api-nexus-f7bcd.appspot.com/o/Listings%2FKB3065AIEB1%2FImages%2FImage33.jpeg?alt=media&token=f431a1c8-6fbe-4329-bce7-2992b707f2ca" [6]=> string(173) "https://firebasestorage.googleapis.com/v0/b/api-nexus-f7bcd.appspot.com/o/Listings%2FKB3065AIEB1%2FImages%2FImage34.jpeg?alt=media&token=6f417ca8-bb74-463a-b69e-46be1422c183" [7]=> string(173) "https://firebasestorage.googleapis.com/v0/b/api-nexus-f7bcd.appspot.com/o/Listings%2FKB3065AIEB1%2FImages%2FImage35.jpeg?alt=media&token=27b772d0-7f01-4dbd-a3de-e743f3637572" [8]=> string(173) "https://firebasestorage.googleapis.com/v0/b/api-nexus-f7bcd.appspot.com/o/Listings%2FKB3065AIEB1%2FImages%2FImage11.jpeg?alt=media&token=c72d2077-70e7-462a-80db-8fd3a0c12e51" [9]=> string(173) "https://firebasestorage.googleapis.com/v0/b/api-nexus-f7bcd.appspot.com/o/Listings%2FKB3065AIEB1%2FImages%2FImage36.jpeg?alt=media&token=881bf2a9-d033-4ca6-a9c2-394a6aef402f" [10]=> string(173) "https://firebasestorage.googleapis.com/v0/b/api-nexus-f7bcd.appspot.com/o/Listings%2FKB3065AIEB1%2FImages%2FImage37.jpeg?alt=media&token=cf3a3239-4bb1-4805-af2e-87ef7c17f84d" [11]=> string(173) "https://firebasestorage.googleapis.com/v0/b/api-nexus-f7bcd.appspot.com/o/Listings%2FKB3065AIEB1%2FImages%2FImage38.jpeg?alt=media&token=936019f3-4200-4712-9a8f-066a3e701857" [12]=> string(173) "https://firebasestorage.googleapis.com/v0/b/api-nexus-f7bcd.appspot.com/o/Listings%2FKB3065AIEB1%2FImages%2FImage25.jpeg?alt=media&token=2464b2c7-d4d4-473a-acf2-af906f97196a" [13]=> string(172) "https://firebasestorage.googleapis.com/v0/b/api-nexus-f7bcd.appspot.com/o/Listings%2FKB3065AIEB1%2FImages%2FImage4.jpeg?alt=media&token=8e9b59c9-42db-4e45-b2e5-621bae3d0e1c" [14]=> string(172) "https://firebasestorage.googleapis.com/v0/b/api-nexus-f7bcd.appspot.com/o/Listings%2FKB3065AIEB1%2FImages%2FImage5.jpeg?alt=media&token=c3f36644-4233-4a98-a251-75ca0d06a465" [15]=> string(172) "https://firebasestorage.googleapis.com/v0/b/api-nexus-f7bcd.appspot.com/o/Listings%2FKB3065AIEB1%2FImages%2FImage6.jpeg?alt=media&token=9da63f47-4d7b-442d-8508-18dd782ea283" [16]=> string(173) "https://firebasestorage.googleapis.com/v0/b/api-nexus-f7bcd.appspot.com/o/Listings%2FKB3065AIEB1%2FImages%2FImage19.jpeg?alt=media&token=0d1fbaa3-ac13-4b7b-bca9-14e5aba7d3a3" [17]=> string(172) "https://firebasestorage.googleapis.com/v0/b/api-nexus-f7bcd.appspot.com/o/Listings%2FKB3065AIEB1%2FImages%2FImage7.jpeg?alt=media&token=56bdbc74-8198-47b0-a67a-3eb732fe67f0" [18]=> string(172) "https://firebasestorage.googleapis.com/v0/b/api-nexus-f7bcd.appspot.com/o/Listings%2FKB3065AIEB1%2FImages%2FImage8.jpeg?alt=media&token=e2b4607a-48bb-4277-b94e-463cf3939bff" [19]=> string(172) "https://firebasestorage.googleapis.com/v0/b/api-nexus-f7bcd.appspot.com/o/Listings%2FKB3065AIEB1%2FImages%2FImage9.jpeg?alt=media&token=c69ce48c-f0a8-4afd-9b45-efc6fda0a751" [20]=> string(173) "https://firebasestorage.googleapis.com/v0/b/api-nexus-f7bcd.appspot.com/o/Listings%2FKB3065AIEB1%2FImages%2FImage12.jpeg?alt=media&token=74d2d669-5c5f-4f2d-8d0e-da5bfd9f0d95" [21]=> string(173) "https://firebasestorage.googleapis.com/v0/b/api-nexus-f7bcd.appspot.com/o/Listings%2FKB3065AIEB1%2FImages%2FImage13.jpeg?alt=media&token=8d0b17c0-dfb0-486a-bcb6-2c9dcafae88a" [22]=> string(173) "https://firebasestorage.googleapis.com/v0/b/api-nexus-f7bcd.appspot.com/o/Listings%2FKB3065AIEB1%2FImages%2FImage14.jpeg?alt=media&token=400d03f5-3c59-410d-a380-8d400d92fd32" [23]=> string(173) "https://firebasestorage.googleapis.com/v0/b/api-nexus-f7bcd.appspot.com/o/Listings%2FKB3065AIEB1%2FImages%2FImage26.jpeg?alt=media&token=7e124605-9667-44b7-beae-0fe440d59922" [24]=> string(173) "https://firebasestorage.googleapis.com/v0/b/api-nexus-f7bcd.appspot.com/o/Listings%2FKB3065AIEB1%2FImages%2FImage15.jpeg?alt=media&token=516ad960-19ea-458c-afe5-62405aeae99c" [25]=> string(173) "https://firebasestorage.googleapis.com/v0/b/api-nexus-f7bcd.appspot.com/o/Listings%2FKB3065AIEB1%2FImages%2FImage16.jpeg?alt=media&token=14c1579f-689a-4ded-939e-9c6050b5aab7" [26]=> string(173) "https://firebasestorage.googleapis.com/v0/b/api-nexus-f7bcd.appspot.com/o/Listings%2FKB3065AIEB1%2FImages%2FImage17.jpeg?alt=media&token=da46008a-ea34-443a-a686-c94db123ddad" [27]=> string(172) "https://firebasestorage.googleapis.com/v0/b/api-nexus-f7bcd.appspot.com/o/Listings%2FKB3065AIEB1%2FImages%2FImage2.jpeg?alt=media&token=96ab13ab-ca63-42c9-a891-fa619c9d04ac" [28]=> string(173) "https://firebasestorage.googleapis.com/v0/b/api-nexus-f7bcd.appspot.com/o/Listings%2FKB3065AIEB1%2FImages%2FImage20.jpeg?alt=media&token=fd507942-50c1-4681-b897-dc0e54af9875" [29]=> string(173) "https://firebasestorage.googleapis.com/v0/b/api-nexus-f7bcd.appspot.com/o/Listings%2FKB3065AIEB1%2FImages%2FImage21.jpeg?alt=media&token=cb33902d-e9c4-4d0d-8f58-3ef700c53cc2" [30]=> string(173) "https://firebasestorage.googleapis.com/v0/b/api-nexus-f7bcd.appspot.com/o/Listings%2FKB3065AIEB1%2FImages%2FImage22.jpeg?alt=media&token=f8294ee8-4902-4fca-b777-a3e170a33636" [31]=> string(173) "https://firebasestorage.googleapis.com/v0/b/api-nexus-f7bcd.appspot.com/o/Listings%2FKB3065AIEB1%2FImages%2FImage23.jpeg?alt=media&token=4e8138b9-90a5-487f-8d65-c8db1f7dd2d5" [32]=> string(173) "https://firebasestorage.googleapis.com/v0/b/api-nexus-f7bcd.appspot.com/o/Listings%2FKB3065AIEB1%2FImages%2FImage24.jpeg?alt=media&token=18c0ce4a-b032-47a2-8c2d-bc8c0a371239" [33]=> string(173) "https://firebasestorage.googleapis.com/v0/b/api-nexus-f7bcd.appspot.com/o/Listings%2FKB3065AIEB1%2FImages%2FImage10.jpeg?alt=media&token=ba5999ac-dbf0-48db-a4d1-253aac28c71b" [34]=> string(173) "https://firebasestorage.googleapis.com/v0/b/api-nexus-f7bcd.appspot.com/o/Listings%2FKB3065AIEB1%2FImages%2FImage27.jpeg?alt=media&token=b2a8bb37-70dc-4aa4-8695-6e64594fdcfd" [35]=> string(173) "https://firebasestorage.googleapis.com/v0/b/api-nexus-f7bcd.appspot.com/o/Listings%2FKB3065AIEB1%2FImages%2FImage28.jpeg?alt=media&token=ef170bbe-f38b-4e74-898d-8265e7b256ad" [36]=> string(173) "https://firebasestorage.googleapis.com/v0/b/api-nexus-f7bcd.appspot.com/o/Listings%2FKB3065AIEB1%2FImages%2FImage29.jpeg?alt=media&token=e6c5c727-e742-4cc4-8a08-76e772d0a820" [37]=> string(172) "https://firebasestorage.googleapis.com/v0/b/api-nexus-f7bcd.appspot.com/o/Listings%2FKB3065AIEB1%2FImages%2FImage3.jpeg?alt=media&token=e25e43a3-e38e-47cc-9571-e73f29a4d2a0" [38]=> string(173) "https://firebasestorage.googleapis.com/v0/b/api-nexus-f7bcd.appspot.com/o/Listings%2FKB3065AIEB1%2FImages%2FImage30.jpeg?alt=media&token=9fd0bf12-5969-45b5-8b38-b1a25b5b0db3" [39]=> string(172) "https://firebasestorage.googleapis.com/v0/b/api-nexus-f7bcd.appspot.com/o/Listings%2FKB3065AIEB1%2FImages%2FImage0.jpeg?alt=media&token=1e06ac4e-990f-46c0-a822-31ee0347a0ee" [40]=> string(172) "https://firebasestorage.googleapis.com/v0/b/api-nexus-f7bcd.appspot.com/o/Listings%2FKB3065AIEB1%2FImages%2FImage1.jpeg?alt=media&token=51e5469b-b5fd-44f9-b60d-8d8f5cee97f2" [41]=> string(173) "https://firebasestorage.googleapis.com/v0/b/api-nexus-f7bcd.appspot.com/o/Listings%2FKB3065AIEB1%2FImages%2FImage31.jpeg?alt=media&token=5b199f21-4935-4a93-86e9-07b23109fbd7" [42]=> string(173) "https://firebasestorage.googleapis.com/v0/b/api-nexus-f7bcd.appspot.com/o/Listings%2FKB3065AIEB1%2FImages%2FImage32.jpeg?alt=media&token=8a349afe-19a3-490b-be42-f7a26212c82a" [43]=> string(173) "https://firebasestorage.googleapis.com/v0/b/api-nexus-f7bcd.appspot.com/o/Listings%2FKB3065AIEB1%2FImages%2FImage18.jpeg?alt=media&token=a7e815e1-4efd-4d7e-ad75-d943dd1cc855" [44]=> string(173) "https://firebasestorage.googleapis.com/v0/b/api-nexus-f7bcd.appspot.com/o/Listings%2FKB3065AIEB1%2FImages%2FImage33.jpeg?alt=media&token=f431a1c8-6fbe-4329-bce7-2992b707f2ca" [45]=> string(173) "https://firebasestorage.googleapis.com/v0/b/api-nexus-f7bcd.appspot.com/o/Listings%2FKB3065AIEB1%2FImages%2FImage34.jpeg?alt=media&token=6f417ca8-bb74-463a-b69e-46be1422c183" [46]=> string(173) "https://firebasestorage.googleapis.com/v0/b/api-nexus-f7bcd.appspot.com/o/Listings%2FKB3065AIEB1%2FImages%2FImage35.jpeg?alt=media&token=27b772d0-7f01-4dbd-a3de-e743f3637572" [47]=> string(173) "https://firebasestorage.googleapis.com/v0/b/api-nexus-f7bcd.appspot.com/o/Listings%2FKB3065AIEB1%2FImages%2FImage11.jpeg?alt=media&token=c72d2077-70e7-462a-80db-8fd3a0c12e51" [48]=> string(173) "https://firebasestorage.googleapis.com/v0/b/api-nexus-f7bcd.appspot.com/o/Listings%2FKB3065AIEB1%2FImages%2FImage36.jpeg?alt=media&token=881bf2a9-d033-4ca6-a9c2-394a6aef402f" [49]=> string(173) "https://firebasestorage.googleapis.com/v0/b/api-nexus-f7bcd.appspot.com/o/Listings%2FKB3065AIEB1%2FImages%2FImage37.jpeg?alt=media&token=cf3a3239-4bb1-4805-af2e-87ef7c17f84d" [50]=> string(173) "https://firebasestorage.googleapis.com/v0/b/api-nexus-f7bcd.appspot.com/o/Listings%2FKB3065AIEB1%2FImages%2FImage38.jpeg?alt=media&token=936019f3-4200-4712-9a8f-066a3e701857" [51]=> string(173) "https://firebasestorage.googleapis.com/v0/b/api-nexus-f7bcd.appspot.com/o/Listings%2FKB3065AIEB1%2FImages%2FImage25.jpeg?alt=media&token=2464b2c7-d4d4-473a-acf2-af906f97196a" [52]=> string(172) "https://firebasestorage.googleapis.com/v0/b/api-nexus-f7bcd.appspot.com/o/Listings%2FKB3065AIEB1%2FImages%2FImage4.jpeg?alt=media&token=8e9b59c9-42db-4e45-b2e5-621bae3d0e1c" [53]=> string(172) "https://firebasestorage.googleapis.com/v0/b/api-nexus-f7bcd.appspot.com/o/Listings%2FKB3065AIEB1%2FImages%2FImage5.jpeg?alt=media&token=c3f36644-4233-4a98-a251-75ca0d06a465" [54]=> string(172) "https://firebasestorage.googleapis.com/v0/b/api-nexus-f7bcd.appspot.com/o/Listings%2FKB3065AIEB1%2FImages%2FImage6.jpeg?alt=media&token=9da63f47-4d7b-442d-8508-18dd782ea283" [55]=> string(173) "https://firebasestorage.googleapis.com/v0/b/api-nexus-f7bcd.appspot.com/o/Listings%2FKB3065AIEB1%2FImages%2FImage19.jpeg?alt=media&token=0d1fbaa3-ac13-4b7b-bca9-14e5aba7d3a3" [56]=> string(172) "https://firebasestorage.googleapis.com/v0/b/api-nexus-f7bcd.appspot.com/o/Listings%2FKB3065AIEB1%2FImages%2FImage7.jpeg?alt=media&token=56bdbc74-8198-47b0-a67a-3eb732fe67f0" [57]=> string(172) "https://firebasestorage.googleapis.com/v0/b/api-nexus-f7bcd.appspot.com/o/Listings%2FKB3065AIEB1%2FImages%2FImage8.jpeg?alt=media&token=e2b4607a-48bb-4277-b94e-463cf3939bff" [58]=> string(172) "https://firebasestorage.googleapis.com/v0/b/api-nexus-f7bcd.appspot.com/o/Listings%2FKB3065AIEB1%2FImages%2FImage9.jpeg?alt=media&token=c69ce48c-f0a8-4afd-9b45-efc6fda0a751" [59]=> string(173) "https://firebasestorage.googleapis.com/v0/b/api-nexus-f7bcd.appspot.com/o/Listings%2FKB3065AIEB1%2FImages%2FImage12.jpeg?alt=media&token=74d2d669-5c5f-4f2d-8d0e-da5bfd9f0d95" [60]=> string(173) "https://firebasestorage.googleapis.com/v0/b/api-nexus-f7bcd.appspot.com/o/Listings%2FKB3065AIEB1%2FImages%2FImage13.jpeg?alt=media&token=8d0b17c0-dfb0-486a-bcb6-2c9dcafae88a" [61]=> string(173) "https://firebasestorage.googleapis.com/v0/b/api-nexus-f7bcd.appspot.com/o/Listings%2FKB3065AIEB1%2FImages%2FImage14.jpeg?alt=media&token=400d03f5-3c59-410d-a380-8d400d92fd32" [62]=> string(173) "https://firebasestorage.googleapis.com/v0/b/api-nexus-f7bcd.appspot.com/o/Listings%2FKB3065AIEB1%2FImages%2FImage26.jpeg?alt=media&token=7e124605-9667-44b7-beae-0fe440d59922" [63]=> string(173) "https://firebasestorage.googleapis.com/v0/b/api-nexus-f7bcd.appspot.com/o/Listings%2FKB3065AIEB1%2FImages%2FImage15.jpeg?alt=media&token=516ad960-19ea-458c-afe5-62405aeae99c" [64]=> string(173) "https://firebasestorage.googleapis.com/v0/b/api-nexus-f7bcd.appspot.com/o/Listings%2FKB3065AIEB1%2FImages%2FImage16.jpeg?alt=media&token=14c1579f-689a-4ded-939e-9c6050b5aab7" [65]=> string(173) "https://firebasestorage.googleapis.com/v0/b/api-nexus-f7bcd.appspot.com/o/Listings%2FKB3065AIEB1%2FImages%2FImage17.jpeg?alt=media&token=da46008a-ea34-443a-a686-c94db123ddad" [66]=> string(172) "https://firebasestorage.googleapis.com/v0/b/api-nexus-f7bcd.appspot.com/o/Listings%2FKB3065AIEB1%2FImages%2FImage2.jpeg?alt=media&token=96ab13ab-ca63-42c9-a891-fa619c9d04ac" [67]=> string(173) "https://firebasestorage.googleapis.com/v0/b/api-nexus-f7bcd.appspot.com/o/Listings%2FKB3065AIEB1%2FImages%2FImage20.jpeg?alt=media&token=fd507942-50c1-4681-b897-dc0e54af9875" [68]=> string(173) "https://firebasestorage.googleapis.com/v0/b/api-nexus-f7bcd.appspot.com/o/Listings%2FKB3065AIEB1%2FImages%2FImage21.jpeg?alt=media&token=cb33902d-e9c4-4d0d-8f58-3ef700c53cc2" [69]=> string(173) "https://firebasestorage.googleapis.com/v0/b/api-nexus-f7bcd.appspot.com/o/Listings%2FKB3065AIEB1%2FImages%2FImage22.jpeg?alt=media&token=f8294ee8-4902-4fca-b777-a3e170a33636" [70]=> string(173) "https://firebasestorage.googleapis.com/v0/b/api-nexus-f7bcd.appspot.com/o/Listings%2FKB3065AIEB1%2FImages%2FImage23.jpeg?alt=media&token=4e8138b9-90a5-487f-8d65-c8db1f7dd2d5" [71]=> string(173) "https://firebasestorage.googleapis.com/v0/b/api-nexus-f7bcd.appspot.com/o/Listings%2FKB3065AIEB1%2FImages%2FImage24.jpeg?alt=media&token=18c0ce4a-b032-47a2-8c2d-bc8c0a371239" [72]=> string(173) "https://firebasestorage.googleapis.com/v0/b/api-nexus-f7bcd.appspot.com/o/Listings%2FKB3065AIEB1%2FImages%2FImage10.jpeg?alt=media&token=ba5999ac-dbf0-48db-a4d1-253aac28c71b" [73]=> string(173) "https://firebasestorage.googleapis.com/v0/b/api-nexus-f7bcd.appspot.com/o/Listings%2FKB3065AIEB1%2FImages%2FImage27.jpeg?alt=media&token=b2a8bb37-70dc-4aa4-8695-6e64594fdcfd" [74]=> string(173) "https://firebasestorage.googleapis.com/v0/b/api-nexus-f7bcd.appspot.com/o/Listings%2FKB3065AIEB1%2FImages%2FImage28.jpeg?alt=media&token=ef170bbe-f38b-4e74-898d-8265e7b256ad" [75]=> string(173) "https://firebasestorage.googleapis.com/v0/b/api-nexus-f7bcd.appspot.com/o/Listings%2FKB3065AIEB1%2FImages%2FImage29.jpeg?alt=media&token=e6c5c727-e742-4cc4-8a08-76e772d0a820" [76]=> string(172) "https://firebasestorage.googleapis.com/v0/b/api-nexus-f7bcd.appspot.com/o/Listings%2FKB3065AIEB1%2FImages%2FImage3.jpeg?alt=media&token=e25e43a3-e38e-47cc-9571-e73f29a4d2a0" [77]=> string(173) "https://firebasestorage.googleapis.com/v0/b/api-nexus-f7bcd.appspot.com/o/Listings%2FKB3065AIEB1%2FImages%2FImage30.jpeg?alt=media&token=9fd0bf12-5969-45b5-8b38-b1a25b5b0db3" } ["class"]=> array(0) { } ["caption"]=> array(0) { } } ["access-view"]=> bool(true) } ["initialized":protected]=> bool(true) ["separator":protected]=> string(1) "." } ["tagLayout"]=> object(Joomla\CMS\Layout\FileLayout)#10750 (7) { ["options":protected]=> object(Joomla\Registry\Registry)#10809 (3) { ["data":protected]=> object(stdClass)#10808 (2) { ["component"]=> string(11) "com_content" ["client"]=> int(0) } ["initialized":protected]=> bool(false) ["separator":protected]=> string(1) "." } ["data":protected]=> array(0) { } ["debugMessages":protected]=> array(0) { } ["layoutId":protected]=> string(19) "joomla.content.tags" ["basePath":protected]=> NULL ["fullPath":protected]=> NULL ["includePaths":protected]=> array(0) { } } ["slug"]=> string(16) "2760:kb3065aieb1" ["readmore_link"]=> string(80) "/index.php/properties/category-blog/593-western-cape/2465-17443/2760-kb3065aieb1" ["text"]=> string(1822) "Arterial Industrial Park enjoys a prime location along Stellenbosch Arterial Road, at the heart of the well-established Blackheath industrial area. This modern, high-spec industrial park boasts a variety of advanced industrial units, designed to accommodate a wide range of manufacturing, storage, and logistical needs. With its strategic positioning, the park offers excellent accessibility to key arterial routes such as the R300, N1, N2, and Cape Town International Airport.Spanning a total gross leasable area of approximately 40,000sqm, the development offers unit sizes ranging from 1,862sqm to 12,000sqm, with flexible design options to suit different operational requirements. The park prioritizes security with 24-hour surveillance, controlled access, and a guardhouse, ensuring a secure environment. The units are thoughtfully planned to maximize the office-to-warehouse ratio, creating efficient and functional spaces. Generous yard areas enable easy movement and storage, complemented by fire sprinklers that meet safety standards and a minimum eaves height of 9m for ample vertical space. Units also feature a mix of on-grade and dock-height roller shutter doors for smooth loading and unloading operations.The building is equipped with a 250-amp three-phase power supply and remote metering for consistent electricity provision. Fully sprinkler-protected warehouses adhere to ASIB standards and accommodate free-standing category III goods. Concrete hardstands and a minimum yard depth of 35,320m² provide ample external operational space. The perimeter walls are built with Tilt-up or Bagged Block Work, reinforced with drywall for added safety. Energy-efficient features such as photovoltaic solar panels, LED lighting, and mechanical ventilation emphasize the development's commitment to sustainability. " ["tags"]=> object(Joomla\CMS\Helper\TagsHelper)#10811 (7) { ["tagsChanged":protected]=> bool(false) ["replaceTags":protected]=> bool(false) ["typeAlias"]=> NULL ["itemTags"]=> array(0) { } ["tags"]=> NULL ["newTags"]=> NULL ["oldTags"]=> NULL } ["jcfields"]=> array(55) { [86]=> object(stdClass)#11299 (33) { ["id"]=> int(86) ["title"]=> string(11) "area-p24-id" ["name"]=> string(11) "area-p24-id" ["checked_out"]=> NULL ["checked_out_time"]=> NULL ["note"]=> string(0) "" ["state"]=> int(1) ["access"]=> int(1) ["created_time"]=> string(19) "2025-08-13 13:08:29" ["created_user_id"]=> int(42) ["ordering"]=> int(0) ["language"]=> string(1) "*" ["fieldparams"]=> object(Joomla\Registry\Registry)#11015 (3) { ["data":protected]=> object(stdClass)#11018 (4) { ["multiple"]=> string(0) "" ["first"]=> string(0) "" ["last"]=> string(0) "" ["step"]=> string(0) "" } ["initialized":protected]=> bool(true) ["separator":protected]=> string(1) "." } ["params"]=> object(Joomla\Registry\Registry)#11016 (3) { ["data":protected]=> object(stdClass)#11020 (16) { ["hint"]=> string(0) "" ["class"]=> string(0) "" ["label_class"]=> string(0) "" ["show_on"]=> string(0) "" ["showon"]=> string(0) "" ["render_class"]=> string(0) "" ["value_render_class"]=> string(0) "" ["showlabel"]=> string(1) "1" ["label_render_class"]=> string(0) "" ["display"]=> string(1) "2" ["prefix"]=> string(0) "" ["suffix"]=> string(0) "" ["layout"]=> string(0) "" ["display_readonly"]=> string(1) "2" ["searchindex"]=> string(1) "0" ["form_layout"]=> string(0) "" } ["initialized":protected]=> bool(true) ["separator":protected]=> string(1) "." } ["type"]=> string(7) "integer" ["default_value"]=> string(0) "" ["context"]=> string(19) "com_content.article" ["group_id"]=> int(6) ["label"]=> string(7) "Area Id" ["description"]=> string(19) "Property 24 area id" ["required"]=> int(0) ["only_use_in_subform"]=> int(0) ["language_title"]=> NULL ["language_image"]=> NULL ["editor"]=> NULL ["access_level"]=> string(6) "Public" ["author_name"]=> string(14) "Lucien Paulsen" ["group_title"]=> string(12) "Area Details" ["group_access"]=> int(1) ["group_state"]=> int(1) ["group_note"]=> string(0) "" ["value"]=> string(5) "17443" ["rawvalue"]=> string(5) "17443" } [91]=> object(stdClass)#11279 (33) { ["id"]=> int(91) ["title"]=> string(8) "CityName" ["name"]=> string(8) "cityname" ["checked_out"]=> NULL ["checked_out_time"]=> NULL ["note"]=> string(0) "" ["state"]=> int(1) ["access"]=> int(1) ["created_time"]=> string(19) "2025-08-13 13:15:04" ["created_user_id"]=> int(42) ["ordering"]=> int(0) ["language"]=> string(1) "*" ["fieldparams"]=> object(Joomla\Registry\Registry)#11017 (3) { ["data":protected]=> object(stdClass)#11022 (2) { ["filter"]=> string(0) "" ["maxlength"]=> string(0) "" } ["initialized":protected]=> bool(true) ["separator":protected]=> string(1) "." } ["params"]=> object(Joomla\Registry\Registry)#11019 (3) { ["data":protected]=> object(stdClass)#11024 (15) { ["hint"]=> string(0) "" ["class"]=> string(0) "" ["label_class"]=> string(0) "" ["show_on"]=> string(0) "" ["showon"]=> string(0) "" ["render_class"]=> string(0) "" ["value_render_class"]=> string(0) "" ["showlabel"]=> string(1) "1" ["label_render_class"]=> string(0) "" ["display"]=> string(1) "2" ["prefix"]=> string(0) "" ["suffix"]=> string(0) "" ["layout"]=> string(0) "" ["display_readonly"]=> string(1) "2" ["searchindex"]=> string(1) "0" } ["initialized":protected]=> bool(true) ["separator":protected]=> string(1) "." } ["type"]=> string(4) "text" ["default_value"]=> string(0) "" ["context"]=> string(19) "com_content.article" ["group_id"]=> int(6) ["label"]=> string(9) "City Name" ["description"]=> string(0) "" ["required"]=> int(0) ["only_use_in_subform"]=> int(0) ["language_title"]=> NULL ["language_image"]=> NULL ["editor"]=> NULL ["access_level"]=> string(6) "Public" ["author_name"]=> string(14) "Lucien Paulsen" ["group_title"]=> string(12) "Area Details" ["group_access"]=> int(1) ["group_state"]=> int(1) ["group_note"]=> string(0) "" ["value"]=> string(21) "Blackheath Industrial" ["rawvalue"]=> string(21) "Blackheath Industrial" } [92]=> object(stdClass)#11280 (33) { ["id"]=> int(92) ["title"]=> string(6) "CityID" ["name"]=> string(6) "cityid" ["checked_out"]=> NULL ["checked_out_time"]=> NULL ["note"]=> string(0) "" ["state"]=> int(1) ["access"]=> int(1) ["created_time"]=> string(19) "2025-08-13 13:47:00" ["created_user_id"]=> int(42) ["ordering"]=> int(0) ["language"]=> string(1) "*" ["fieldparams"]=> object(Joomla\Registry\Registry)#11021 (3) { ["data":protected]=> object(stdClass)#11026 (4) { ["multiple"]=> string(0) "" ["first"]=> string(0) "" ["last"]=> string(0) "" ["step"]=> string(0) "" } ["initialized":protected]=> bool(true) ["separator":protected]=> string(1) "." } ["params"]=> object(Joomla\Registry\Registry)#11023 (3) { ["data":protected]=> object(stdClass)#11028 (16) { ["hint"]=> string(0) "" ["class"]=> string(0) "" ["label_class"]=> string(0) "" ["show_on"]=> string(0) "" ["showon"]=> string(0) "" ["render_class"]=> string(0) "" ["value_render_class"]=> string(0) "" ["showlabel"]=> string(1) "1" ["label_render_class"]=> string(0) "" ["display"]=> string(1) "2" ["prefix"]=> string(0) "" ["suffix"]=> string(0) "" ["layout"]=> string(0) "" ["display_readonly"]=> string(1) "2" ["searchindex"]=> string(1) "0" ["form_layout"]=> string(0) "" } ["initialized":protected]=> bool(true) ["separator":protected]=> string(1) "." } ["type"]=> string(7) "integer" ["default_value"]=> string(0) "" ["context"]=> string(19) "com_content.article" ["group_id"]=> int(6) ["label"]=> string(6) "CityID" ["description"]=> string(0) "" ["required"]=> int(0) ["only_use_in_subform"]=> int(0) ["language_title"]=> NULL ["language_image"]=> NULL ["editor"]=> NULL ["access_level"]=> string(6) "Public" ["author_name"]=> string(14) "Lucien Paulsen" ["group_title"]=> string(12) "Area Details" ["group_access"]=> int(1) ["group_state"]=> int(1) ["group_note"]=> string(0) "" ["value"]=> string(3) "456" ["rawvalue"]=> string(3) "456" } [96]=> object(stdClass)#11278 (33) { ["id"]=> int(96) ["title"]=> string(14) "TypeOfProperty" ["name"]=> string(16) "type-of-property" ["checked_out"]=> NULL ["checked_out_time"]=> NULL ["note"]=> string(0) "" ["state"]=> int(1) ["access"]=> int(1) ["created_time"]=> string(19) "2025-09-05 11:17:12" ["created_user_id"]=> int(42) ["ordering"]=> int(0) ["language"]=> string(1) "*" ["fieldparams"]=> object(Joomla\Registry\Registry)#11025 (3) { ["data":protected]=> object(stdClass)#11030 (2) { ["filter"]=> string(0) "" ["maxlength"]=> string(0) "" } ["initialized":protected]=> bool(true) ["separator":protected]=> string(1) "." } ["params"]=> object(Joomla\Registry\Registry)#11027 (3) { ["data":protected]=> object(stdClass)#11032 (15) { ["hint"]=> string(0) "" ["class"]=> string(0) "" ["label_class"]=> string(0) "" ["show_on"]=> string(0) "" ["showon"]=> string(0) "" ["render_class"]=> string(0) "" ["value_render_class"]=> string(0) "" ["showlabel"]=> string(1) "1" ["label_render_class"]=> string(0) "" ["display"]=> string(1) "2" ["prefix"]=> string(0) "" ["suffix"]=> string(0) "" ["layout"]=> string(0) "" ["display_readonly"]=> string(1) "2" ["searchindex"]=> string(1) "0" } ["initialized":protected]=> bool(true) ["separator":protected]=> string(1) "." } ["type"]=> string(4) "text" ["default_value"]=> string(9) "Warehouse" ["context"]=> string(19) "com_content.article" ["group_id"]=> int(4) ["label"]=> string(16) "Type Of Property" ["description"]=> string(0) "" ["required"]=> int(0) ["only_use_in_subform"]=> int(0) ["language_title"]=> NULL ["language_image"]=> NULL ["editor"]=> NULL ["access_level"]=> string(6) "Public" ["author_name"]=> string(14) "Lucien Paulsen" ["group_title"]=> string(16) "Property Details" ["group_access"]=> int(1) ["group_state"]=> int(1) ["group_note"]=> string(0) "" ["value"]=> string(10) "Wharehouse" ["rawvalue"]=> string(10) "Wharehouse" } [97]=> object(stdClass)#11281 (33) { ["id"]=> int(97) ["title"]=> string(9) "UsageType" ["name"]=> string(10) "usage-type" ["checked_out"]=> NULL ["checked_out_time"]=> NULL ["note"]=> string(0) "" ["state"]=> int(1) ["access"]=> int(1) ["created_time"]=> string(19) "2025-09-05 11:19:47" ["created_user_id"]=> int(42) ["ordering"]=> int(0) ["language"]=> string(1) "*" ["fieldparams"]=> object(Joomla\Registry\Registry)#11029 (3) { ["data":protected]=> object(stdClass)#11034 (3) { ["header"]=> string(0) "" ["multiple"]=> string(0) "" ["options"]=> object(stdClass)#11036 (2) { ["options0"]=> object(stdClass)#11035 (2) { ["name"]=> string(10) "Industrial" ["value"]=> string(10) "Industrial" } ["options1"]=> object(stdClass)#11037 (2) { ["name"]=> string(10) "Commercial" ["value"]=> string(10) "Commercial" } } } ["initialized":protected]=> bool(true) ["separator":protected]=> string(1) "." } ["params"]=> object(Joomla\Registry\Registry)#11031 (3) { ["data":protected]=> object(stdClass)#11039 (15) { ["class"]=> string(0) "" ["label_class"]=> string(0) "" ["show_on"]=> string(0) "" ["showon"]=> string(0) "" ["render_class"]=> string(0) "" ["value_render_class"]=> string(0) "" ["showlabel"]=> string(1) "1" ["label_render_class"]=> string(0) "" ["display"]=> string(1) "2" ["prefix"]=> string(0) "" ["suffix"]=> string(0) "" ["layout"]=> string(0) "" ["display_readonly"]=> string(1) "2" ["searchindex"]=> string(1) "0" ["form_layout"]=> string(0) "" } ["initialized":protected]=> bool(true) ["separator":protected]=> string(1) "." } ["type"]=> string(4) "list" ["default_value"]=> string(10) "Industrial" ["context"]=> string(19) "com_content.article" ["group_id"]=> int(3) ["label"]=> string(10) "Usage Type" ["description"]=> string(0) "" ["required"]=> int(0) ["only_use_in_subform"]=> int(0) ["language_title"]=> NULL ["language_image"]=> NULL ["editor"]=> NULL ["access_level"]=> string(6) "Public" ["author_name"]=> string(14) "Lucien Paulsen" ["group_title"]=> string(15) "Property Fields" ["group_access"]=> int(1) ["group_state"]=> int(1) ["group_note"]=> string(0) "" ["value"]=> string(10) "Industrial" ["rawvalue"]=> array(1) { [0]=> string(10) "Industrial" } } [99]=> object(stdClass)#11269 (33) { ["id"]=> int(99) ["title"]=> string(6) "pdfUrl" ["name"]=> string(6) "pdfurl" ["checked_out"]=> NULL ["checked_out_time"]=> NULL ["note"]=> string(0) "" ["state"]=> int(1) ["access"]=> int(1) ["created_time"]=> string(19) "2025-09-11 09:48:16" ["created_user_id"]=> int(42) ["ordering"]=> int(0) ["language"]=> string(1) "*" ["fieldparams"]=> object(Joomla\Registry\Registry)#11033 (3) { ["data":protected]=> object(stdClass)#11041 (2) { ["filter"]=> string(0) "" ["maxlength"]=> string(0) "" } ["initialized":protected]=> bool(true) ["separator":protected]=> string(1) "." } ["params"]=> object(Joomla\Registry\Registry)#11038 (3) { ["data":protected]=> object(stdClass)#11043 (15) { ["hint"]=> string(0) "" ["class"]=> string(0) "" ["label_class"]=> string(0) "" ["show_on"]=> string(0) "" ["showon"]=> string(0) "" ["render_class"]=> string(0) "" ["value_render_class"]=> string(0) "" ["showlabel"]=> string(1) "1" ["label_render_class"]=> string(0) "" ["display"]=> string(1) "2" ["prefix"]=> string(0) "" ["suffix"]=> string(0) "" ["layout"]=> string(0) "" ["display_readonly"]=> string(1) "2" ["searchindex"]=> string(1) "0" } ["initialized":protected]=> bool(true) ["separator":protected]=> string(1) "." } ["type"]=> string(4) "text" ["default_value"]=> string(0) "" ["context"]=> string(19) "com_content.article" ["group_id"]=> int(0) ["label"]=> string(6) "pdfUrl" ["description"]=> string(0) "" ["required"]=> int(0) ["only_use_in_subform"]=> int(0) ["language_title"]=> NULL ["language_image"]=> NULL ["editor"]=> NULL ["access_level"]=> string(6) "Public" ["author_name"]=> string(14) "Lucien Paulsen" ["group_title"]=> NULL ["group_access"]=> NULL ["group_state"]=> NULL ["group_note"]=> NULL ["value"]=> string(0) "" ["rawvalue"]=> string(0) "" } [100]=> object(stdClass)#11270 (33) { ["id"]=> int(100) ["title"]=> string(3) "POA" ["name"]=> string(3) "poa" ["checked_out"]=> NULL ["checked_out_time"]=> NULL ["note"]=> string(0) "" ["state"]=> int(1) ["access"]=> int(1) ["created_time"]=> string(19) "2025-09-13 13:50:19" ["created_user_id"]=> int(42) ["ordering"]=> int(0) ["language"]=> string(1) "*" ["fieldparams"]=> object(Joomla\Registry\Registry)#11040 (3) { ["data":protected]=> object(stdClass)#11048 (1) { ["options"]=> object(stdClass)#11046 (2) { ["options0"]=> object(stdClass)#11045 (2) { ["name"]=> string(5) "false" ["value"]=> string(2) "No" } ["options1"]=> object(stdClass)#11047 (2) { ["name"]=> string(4) "true" ["value"]=> string(3) "Yes" } } } ["initialized":protected]=> bool(true) ["separator":protected]=> string(1) "." } ["params"]=> object(Joomla\Registry\Registry)#11042 (3) { ["data":protected]=> object(stdClass)#11050 (15) { ["hint"]=> string(0) "" ["class"]=> string(0) "" ["label_class"]=> string(0) "" ["show_on"]=> string(0) "" ["showon"]=> string(0) "" ["render_class"]=> string(0) "" ["value_render_class"]=> string(0) "" ["showlabel"]=> string(1) "1" ["label_render_class"]=> string(0) "" ["display"]=> string(1) "2" ["prefix"]=> string(0) "" ["suffix"]=> string(0) "" ["layout"]=> string(0) "" ["display_readonly"]=> string(1) "2" ["searchindex"]=> string(1) "0" } ["initialized":protected]=> bool(true) ["separator":protected]=> string(1) "." } ["type"]=> string(10) "checkboxes" ["default_value"]=> string(0) "" ["context"]=> string(19) "com_content.article" ["group_id"]=> int(5) ["label"]=> string(20) "Price on Application" ["description"]=> string(0) "" ["required"]=> int(0) ["only_use_in_subform"]=> int(0) ["language_title"]=> NULL ["language_image"]=> NULL ["editor"]=> NULL ["access_level"]=> string(6) "Public" ["author_name"]=> string(14) "Lucien Paulsen" ["group_title"]=> string(15) "Pricing Details" ["group_access"]=> int(1) ["group_state"]=> int(1) ["group_note"]=> string(0) "" ["value"]=> string(5) "false" ["rawvalue"]=> string(2) "No" } [147]=> object(stdClass)#11267 (33) { ["id"]=> int(147) ["title"]=> string(16) "ctm_content_type" ["name"]=> string(16) "ctm-content-type" ["checked_out"]=> NULL ["checked_out_time"]=> NULL ["note"]=> string(0) "" ["state"]=> int(1) ["access"]=> int(1) ["created_time"]=> string(19) "2025-10-27 09:19:31" ["created_user_id"]=> int(42) ["ordering"]=> int(0) ["language"]=> string(1) "*" ["fieldparams"]=> object(Joomla\Registry\Registry)#11044 (3) { ["data":protected]=> object(stdClass)#11052 (4) { ["rows"]=> string(0) "" ["cols"]=> string(0) "" ["maxlength"]=> string(0) "" ["filter"]=> string(0) "" } ["initialized":protected]=> bool(true) ["separator":protected]=> string(1) "." } ["params"]=> object(Joomla\Registry\Registry)#11049 (3) { ["data":protected]=> object(stdClass)#11054 (15) { ["hint"]=> string(0) "" ["class"]=> string(0) "" ["label_class"]=> string(0) "" ["show_on"]=> string(0) "" ["showon"]=> string(0) "" ["render_class"]=> string(0) "" ["value_render_class"]=> string(0) "" ["showlabel"]=> string(1) "1" ["label_render_class"]=> string(0) "" ["display"]=> string(1) "2" ["prefix"]=> string(0) "" ["suffix"]=> string(0) "" ["layout"]=> string(0) "" ["display_readonly"]=> string(1) "2" ["searchindex"]=> string(1) "0" } ["initialized":protected]=> bool(true) ["separator":protected]=> string(1) "." } ["type"]=> string(8) "textarea" ["default_value"]=> string(0) "" ["context"]=> string(19) "com_content.article" ["group_id"]=> int(3) ["label"]=> string(16) "ctm_content_type" ["description"]=> string(0) "" ["required"]=> int(0) ["only_use_in_subform"]=> int(0) ["language_title"]=> NULL ["language_image"]=> NULL ["editor"]=> NULL ["access_level"]=> string(6) "Public" ["author_name"]=> string(14) "Lucien Paulsen" ["group_title"]=> string(15) "Property Fields" ["group_access"]=> int(1) ["group_state"]=> int(1) ["group_note"]=> string(0) "" ["value"]=> string(0) "" ["rawvalue"]=> string(0) "" } [148]=> object(stdClass)#11271 (33) { ["id"]=> int(148) ["title"]=> string(11) "ctm_gallery" ["name"]=> string(11) "ctm-gallery" ["checked_out"]=> NULL ["checked_out_time"]=> NULL ["note"]=> string(0) "" ["state"]=> int(1) ["access"]=> int(1) ["created_time"]=> string(19) "2025-10-27 09:20:27" ["created_user_id"]=> int(42) ["ordering"]=> int(0) ["language"]=> string(1) "*" ["fieldparams"]=> object(Joomla\Registry\Registry)#11051 (3) { ["data":protected]=> object(stdClass)#11056 (4) { ["rows"]=> string(0) "" ["cols"]=> string(0) "" ["maxlength"]=> string(0) "" ["filter"]=> string(0) "" } ["initialized":protected]=> bool(true) ["separator":protected]=> string(1) "." } ["params"]=> object(Joomla\Registry\Registry)#11053 (3) { ["data":protected]=> object(stdClass)#11058 (15) { ["hint"]=> string(0) "" ["class"]=> string(0) "" ["label_class"]=> string(0) "" ["show_on"]=> string(0) "" ["showon"]=> string(0) "" ["render_class"]=> string(0) "" ["value_render_class"]=> string(0) "" ["showlabel"]=> string(1) "1" ["label_render_class"]=> string(0) "" ["display"]=> string(1) "2" ["prefix"]=> string(0) "" ["suffix"]=> string(0) "" ["layout"]=> string(0) "" ["display_readonly"]=> string(1) "2" ["searchindex"]=> string(1) "0" } ["initialized":protected]=> bool(true) ["separator":protected]=> string(1) "." } ["type"]=> string(8) "textarea" ["default_value"]=> string(0) "" ["context"]=> string(19) "com_content.article" ["group_id"]=> int(3) ["label"]=> string(11) "ctm_gallery" ["description"]=> string(0) "" ["required"]=> int(0) ["only_use_in_subform"]=> int(0) ["language_title"]=> NULL ["language_image"]=> NULL ["editor"]=> NULL ["access_level"]=> string(6) "Public" ["author_name"]=> string(14) "Lucien Paulsen" ["group_title"]=> string(15) "Property Fields" ["group_access"]=> int(1) ["group_state"]=> int(1) ["group_note"]=> string(0) "" ["value"]=> string(0) "" ["rawvalue"]=> string(0) "" } [2]=> object(stdClass)#10927 (33) { ["id"]=> int(2) ["title"]=> string(7) "Parking" ["name"]=> string(7) "parking" ["checked_out"]=> NULL ["checked_out_time"]=> NULL ["note"]=> string(0) "" ["state"]=> int(1) ["access"]=> int(1) ["created_time"]=> string(19) "2022-07-26 02:04:15" ["created_user_id"]=> int(42) ["ordering"]=> int(1) ["language"]=> string(1) "*" ["fieldparams"]=> object(Joomla\Registry\Registry)#11055 (3) { ["data":protected]=> object(stdClass)#11060 (4) { ["multiple"]=> string(0) "" ["first"]=> string(0) "" ["last"]=> string(0) "" ["step"]=> string(0) "" } ["initialized":protected]=> bool(true) ["separator":protected]=> string(1) "." } ["params"]=> object(Joomla\Registry\Registry)#11057 (3) { ["data":protected]=> object(stdClass)#11062 (16) { ["hint"]=> string(0) "" ["class"]=> string(0) "" ["label_class"]=> string(0) "" ["show_on"]=> string(0) "" ["showon"]=> string(0) "" ["render_class"]=> string(19) "r-bathrooms r-class" ["value_render_class"]=> string(0) "" ["showlabel"]=> string(1) "1" ["label_render_class"]=> string(11) "l-bathrooms" ["display"]=> string(1) "2" ["prefix"]=> string(0) "" ["suffix"]=> string(0) "" ["layout"]=> string(0) "" ["display_readonly"]=> string(1) "2" ["searchindex"]=> string(1) "0" ["form_layout"]=> string(0) "" } ["initialized":protected]=> bool(true) ["separator":protected]=> string(1) "." } ["type"]=> string(7) "integer" ["default_value"]=> string(0) "" ["context"]=> string(19) "com_content.article" ["group_id"]=> int(3) ["label"]=> string(7) "Parking" ["description"]=> string(0) "" ["required"]=> int(0) ["only_use_in_subform"]=> int(0) ["language_title"]=> NULL ["language_image"]=> NULL ["editor"]=> NULL ["access_level"]=> string(6) "Public" ["author_name"]=> string(14) "Lucien Paulsen" ["group_title"]=> string(15) "Property Fields" ["group_access"]=> int(1) ["group_state"]=> int(1) ["group_note"]=> string(0) "" ["value"]=> string(0) "" ["rawvalue"]=> string(0) "" } [84]=> object(stdClass)#10962 (33) { ["id"]=> int(84) ["title"]=> string(6) "Branch" ["name"]=> string(6) "branch" ["checked_out"]=> NULL ["checked_out_time"]=> NULL ["note"]=> string(0) "" ["state"]=> int(1) ["access"]=> int(1) ["created_time"]=> string(19) "2024-11-28 09:15:04" ["created_user_id"]=> int(42) ["ordering"]=> int(1) ["language"]=> string(1) "*" ["fieldparams"]=> object(Joomla\Registry\Registry)#11059 (3) { ["data":protected]=> object(stdClass)#11064 (2) { ["filter"]=> string(0) "" ["maxlength"]=> string(0) "" } ["initialized":protected]=> bool(true) ["separator":protected]=> string(1) "." } ["params"]=> object(Joomla\Registry\Registry)#11061 (3) { ["data":protected]=> object(stdClass)#11066 (15) { ["hint"]=> string(0) "" ["class"]=> string(0) "" ["label_class"]=> string(0) "" ["show_on"]=> string(0) "" ["showon"]=> string(0) "" ["render_class"]=> string(0) "" ["value_render_class"]=> string(0) "" ["showlabel"]=> string(1) "1" ["label_render_class"]=> string(0) "" ["display"]=> string(1) "2" ["prefix"]=> string(0) "" ["suffix"]=> string(0) "" ["layout"]=> string(0) "" ["display_readonly"]=> string(1) "2" ["searchindex"]=> string(1) "0" } ["initialized":protected]=> bool(true) ["separator":protected]=> string(1) "." } ["type"]=> string(4) "text" ["default_value"]=> string(0) "" ["context"]=> string(19) "com_content.article" ["group_id"]=> int(4) ["label"]=> string(6) "Branch" ["description"]=> string(6) "Branch" ["required"]=> int(0) ["only_use_in_subform"]=> int(0) ["language_title"]=> NULL ["language_image"]=> NULL ["editor"]=> NULL ["access_level"]=> string(6) "Public" ["author_name"]=> string(14) "Lucien Paulsen" ["group_title"]=> string(16) "Property Details" ["group_access"]=> int(1) ["group_state"]=> int(1) ["group_note"]=> string(0) "" ["value"]=> string(9) "Cape Town" ["rawvalue"]=> string(9) "Cape Town" } [3]=> object(stdClass)#10896 (33) { ["id"]=> int(3) ["title"]=> string(15) "Covered Parking" ["name"]=> string(15) "covered-parking" ["checked_out"]=> NULL ["checked_out_time"]=> NULL ["note"]=> string(0) "" ["state"]=> int(1) ["access"]=> int(1) ["created_time"]=> string(19) "2022-07-26 02:04:15" ["created_user_id"]=> int(42) ["ordering"]=> int(2) ["language"]=> string(1) "*" ["fieldparams"]=> object(Joomla\Registry\Registry)#11063 (3) { ["data":protected]=> object(stdClass)#11068 (4) { ["multiple"]=> string(0) "" ["first"]=> string(0) "" ["last"]=> string(0) "" ["step"]=> string(0) "" } ["initialized":protected]=> bool(true) ["separator":protected]=> string(1) "." } ["params"]=> object(Joomla\Registry\Registry)#11065 (3) { ["data":protected]=> object(stdClass)#11070 (16) { ["hint"]=> string(0) "" ["class"]=> string(0) "" ["label_class"]=> string(0) "" ["show_on"]=> string(0) "" ["showon"]=> string(0) "" ["render_class"]=> string(18) "r-bedrooms r-class" ["value_render_class"]=> string(0) "" ["showlabel"]=> string(1) "1" ["label_render_class"]=> string(10) "l-bedrooms" ["display"]=> string(1) "2" ["prefix"]=> string(0) "" ["suffix"]=> string(0) "" ["layout"]=> string(0) "" ["display_readonly"]=> string(1) "2" ["searchindex"]=> string(1) "0" ["form_layout"]=> string(0) "" } ["initialized":protected]=> bool(true) ["separator":protected]=> string(1) "." } ["type"]=> string(7) "integer" ["default_value"]=> string(0) "" ["context"]=> string(19) "com_content.article" ["group_id"]=> int(3) ["label"]=> string(15) "Covered Parking" ["description"]=> string(0) "" ["required"]=> int(0) ["only_use_in_subform"]=> int(0) ["language_title"]=> NULL ["language_image"]=> NULL ["editor"]=> NULL ["access_level"]=> string(6) "Public" ["author_name"]=> string(14) "Lucien Paulsen" ["group_title"]=> string(15) "Property Fields" ["group_access"]=> int(1) ["group_state"]=> int(1) ["group_note"]=> string(0) "" ["value"]=> string(0) "" ["rawvalue"]=> string(0) "" } [83]=> object(stdClass)#10961 (33) { ["id"]=> int(83) ["title"]=> string(6) "status" ["name"]=> string(6) "status" ["checked_out"]=> NULL ["checked_out_time"]=> NULL ["note"]=> string(0) "" ["state"]=> int(1) ["access"]=> int(1) ["created_time"]=> string(19) "2024-11-28 09:06:08" ["created_user_id"]=> int(42) ["ordering"]=> int(2) ["language"]=> string(1) "*" ["fieldparams"]=> object(Joomla\Registry\Registry)#11067 (3) { ["data":protected]=> object(stdClass)#11072 (2) { ["filter"]=> string(0) "" ["maxlength"]=> string(0) "" } ["initialized":protected]=> bool(true) ["separator":protected]=> string(1) "." } ["params"]=> object(Joomla\Registry\Registry)#11069 (3) { ["data":protected]=> object(stdClass)#11074 (15) { ["hint"]=> string(0) "" ["class"]=> string(0) "" ["label_class"]=> string(0) "" ["show_on"]=> string(0) "" ["showon"]=> string(0) "" ["render_class"]=> string(0) "" ["value_render_class"]=> string(0) "" ["showlabel"]=> string(1) "1" ["label_render_class"]=> string(0) "" ["display"]=> string(1) "2" ["prefix"]=> string(0) "" ["suffix"]=> string(0) "" ["layout"]=> string(0) "" ["display_readonly"]=> string(1) "2" ["searchindex"]=> string(1) "0" } ["initialized":protected]=> bool(true) ["separator":protected]=> string(1) "." } ["type"]=> string(4) "text" ["default_value"]=> NULL ["context"]=> string(19) "com_content.article" ["group_id"]=> int(4) ["label"]=> string(6) "status" ["description"]=> string(22) "Status of the property" ["required"]=> int(0) ["only_use_in_subform"]=> int(0) ["language_title"]=> NULL ["language_image"]=> NULL ["editor"]=> NULL ["access_level"]=> string(6) "Public" ["author_name"]=> string(14) "Lucien Paulsen" ["group_title"]=> string(16) "Property Details" ["group_access"]=> int(1) ["group_state"]=> int(1) ["group_note"]=> string(0) "" ["value"]=> string(6) "Active" ["rawvalue"]=> string(6) "Active" } [6]=> object(stdClass)#10960 (33) { ["id"]=> int(6) ["title"]=> string(4) "Area" ["name"]=> string(19) "gross-lettable-area" ["checked_out"]=> NULL ["checked_out_time"]=> NULL ["note"]=> string(0) "" ["state"]=> int(1) ["access"]=> int(1) ["created_time"]=> string(19) "2022-07-26 02:04:15" ["created_user_id"]=> int(42) ["ordering"]=> int(3) ["language"]=> string(1) "*" ["fieldparams"]=> object(Joomla\Registry\Registry)#11071 (3) { ["data":protected]=> object(stdClass)#11076 (2) { ["filter"]=> string(5) "float" ["maxlength"]=> string(0) "" } ["initialized":protected]=> bool(true) ["separator":protected]=> string(1) "." } ["params"]=> object(Joomla\Registry\Registry)#11073 (3) { ["data":protected]=> object(stdClass)#11078 (15) { ["hint"]=> string(0) "" ["class"]=> string(0) "" ["label_class"]=> string(0) "" ["show_on"]=> string(0) "" ["showon"]=> string(0) "" ["render_class"]=> string(14) "r-area r-class" ["value_render_class"]=> string(0) "" ["showlabel"]=> string(1) "1" ["label_render_class"]=> string(6) "l-area" ["display"]=> string(1) "2" ["prefix"]=> string(0) "" ["suffix"]=> string(0) "" ["layout"]=> string(0) "" ["display_readonly"]=> string(1) "2" ["searchindex"]=> string(1) "0" } ["initialized":protected]=> bool(true) ["separator":protected]=> string(1) "." } ["type"]=> string(4) "text" ["default_value"]=> string(0) "" ["context"]=> string(19) "com_content.article" ["group_id"]=> int(3) ["label"]=> string(19) "GROSS LETTABLE AREA" ["description"]=> string(0) "" ["required"]=> int(0) ["only_use_in_subform"]=> int(0) ["language_title"]=> NULL ["language_image"]=> NULL ["editor"]=> NULL ["access_level"]=> string(6) "Public" ["author_name"]=> string(14) "Lucien Paulsen" ["group_title"]=> string(15) "Property Fields" ["group_access"]=> int(1) ["group_state"]=> int(1) ["group_note"]=> string(0) "" ["value"]=> string(5) "21703" ["rawvalue"]=> string(5) "21703" } [82]=> object(stdClass)#10959 (33) { ["id"]=> int(82) ["title"]=> string(6) "Webref" ["name"]=> string(6) "webref" ["checked_out"]=> NULL ["checked_out_time"]=> NULL ["note"]=> string(0) "" ["state"]=> int(1) ["access"]=> int(1) ["created_time"]=> string(19) "2024-11-21 09:26:38" ["created_user_id"]=> int(42) ["ordering"]=> int(3) ["language"]=> string(1) "*" ["fieldparams"]=> object(Joomla\Registry\Registry)#11075 (3) { ["data":protected]=> object(stdClass)#11080 (2) { ["filter"]=> string(0) "" ["maxlength"]=> string(0) "" } ["initialized":protected]=> bool(true) ["separator":protected]=> string(1) "." } ["params"]=> object(Joomla\Registry\Registry)#11077 (3) { ["data":protected]=> object(stdClass)#11082 (15) { ["hint"]=> string(0) "" ["class"]=> string(0) "" ["label_class"]=> string(0) "" ["show_on"]=> string(0) "" ["showon"]=> string(0) "" ["render_class"]=> string(0) "" ["value_render_class"]=> string(0) "" ["showlabel"]=> string(1) "1" ["label_render_class"]=> string(0) "" ["display"]=> string(1) "2" ["prefix"]=> string(0) "" ["suffix"]=> string(0) "" ["layout"]=> string(0) "" ["display_readonly"]=> string(1) "2" ["searchindex"]=> string(1) "0" } ["initialized":protected]=> bool(true) ["separator":protected]=> string(1) "." } ["type"]=> string(4) "text" ["default_value"]=> string(0) "" ["context"]=> string(19) "com_content.article" ["group_id"]=> int(4) ["label"]=> string(13) "WEB REFERENCE" ["description"]=> string(0) "" ["required"]=> int(0) ["only_use_in_subform"]=> int(0) ["language_title"]=> NULL ["language_image"]=> NULL ["editor"]=> NULL ["access_level"]=> string(6) "Public" ["author_name"]=> string(14) "Lucien Paulsen" ["group_title"]=> string(16) "Property Details" ["group_access"]=> int(1) ["group_state"]=> int(1) ["group_note"]=> string(0) "" ["value"]=> string(11) "KB3065AIEB1" ["rawvalue"]=> string(11) "KB3065AIEB1" } [17]=> object(stdClass)#10906 (33) { ["id"]=> int(17) ["title"]=> string(13) "Value of Area" ["name"]=> string(13) "value-of-area" ["checked_out"]=> NULL ["checked_out_time"]=> NULL ["note"]=> string(0) "" ["state"]=> int(1) ["access"]=> int(1) ["created_time"]=> string(19) "2022-07-26 02:04:15" ["created_user_id"]=> int(42) ["ordering"]=> int(4) ["language"]=> string(1) "*" ["fieldparams"]=> object(Joomla\Registry\Registry)#11079 (3) { ["data":protected]=> object(stdClass)#11084 (2) { ["multiple"]=> string(0) "" ["options"]=> object(stdClass)#11086 (2) { ["options0"]=> object(stdClass)#11085 (2) { ["name"]=> string(4) "sqft" ["value"]=> string(4) "sqft" } ["options1"]=> object(stdClass)#11087 (2) { ["name"]=> string(2) "m2" ["value"]=> string(2) "m2" } } } ["initialized":protected]=> bool(true) ["separator":protected]=> string(1) "." } ["params"]=> object(Joomla\Registry\Registry)#11081 (3) { ["data":protected]=> object(stdClass)#11089 (9) { ["class"]=> string(0) "" ["label_class"]=> string(0) "" ["show_on"]=> string(0) "" ["render_class"]=> string(15) "r-value-of-area" ["showlabel"]=> string(1) "1" ["label_render_class"]=> string(15) "l-value-of-area" ["display"]=> string(1) "2" ["layout"]=> string(0) "" ["display_readonly"]=> string(1) "2" } ["initialized":protected]=> bool(true) ["separator":protected]=> string(1) "." } ["type"]=> string(4) "list" ["default_value"]=> string(4) "sqft" ["context"]=> string(19) "com_content.article" ["group_id"]=> int(3) ["label"]=> string(13) "Value of Area" ["description"]=> string(0) "" ["required"]=> int(0) ["only_use_in_subform"]=> int(0) ["language_title"]=> NULL ["language_image"]=> NULL ["editor"]=> NULL ["access_level"]=> string(6) "Public" ["author_name"]=> string(14) "Lucien Paulsen" ["group_title"]=> string(15) "Property Fields" ["group_access"]=> int(1) ["group_state"]=> int(1) ["group_note"]=> string(0) "" ["value"]=> string(2) "m2" ["rawvalue"]=> array(1) { [0]=> string(2) "m2" } } [50]=> object(stdClass)#10907 (33) { ["id"]=> int(50) ["title"]=> string(13) "Building size" ["name"]=> string(13) "building-size" ["checked_out"]=> NULL ["checked_out_time"]=> NULL ["note"]=> string(0) "" ["state"]=> int(1) ["access"]=> int(1) ["created_time"]=> string(19) "2024-10-09 06:36:59" ["created_user_id"]=> int(155) ["ordering"]=> int(4) ["language"]=> string(1) "*" ["fieldparams"]=> object(Joomla\Registry\Registry)#11083 (3) { ["data":protected]=> object(stdClass)#11091 (2) { ["filter"]=> string(0) "" ["maxlength"]=> string(0) "" } ["initialized":protected]=> bool(true) ["separator":protected]=> string(1) "." } ["params"]=> object(Joomla\Registry\Registry)#11088 (3) { ["data":protected]=> object(stdClass)#11093 (15) { ["hint"]=> string(0) "" ["class"]=> string(0) "" ["label_class"]=> string(0) "" ["show_on"]=> string(0) "" ["showon"]=> string(0) "" ["render_class"]=> string(0) "" ["value_render_class"]=> string(0) "" ["showlabel"]=> string(1) "1" ["label_render_class"]=> string(0) "" ["display"]=> string(1) "2" ["prefix"]=> string(0) "" ["suffix"]=> string(0) "" ["layout"]=> string(0) "" ["display_readonly"]=> string(1) "2" ["searchindex"]=> string(1) "0" } ["initialized":protected]=> bool(true) ["separator":protected]=> string(1) "." } ["type"]=> string(4) "text" ["default_value"]=> NULL ["context"]=> string(19) "com_content.article" ["group_id"]=> int(4) ["label"]=> string(13) "Building size" ["description"]=> string(0) "" ["required"]=> int(0) ["only_use_in_subform"]=> int(0) ["language_title"]=> NULL ["language_image"]=> NULL ["editor"]=> NULL ["access_level"]=> string(6) "Public" ["author_name"]=> string(8) "Mohammed" ["group_title"]=> string(16) "Property Details" ["group_access"]=> int(1) ["group_state"]=> int(1) ["group_note"]=> string(0) "" ["value"]=> string(4) "3065" ["rawvalue"]=> string(4) "3065" } [38]=> object(stdClass)#10903 (33) { ["id"]=> int(38) ["title"]=> string(8) "Erf size" ["name"]=> string(12) "size-of-land" ["checked_out"]=> NULL ["checked_out_time"]=> NULL ["note"]=> string(0) "" ["state"]=> int(1) ["access"]=> int(1) ["created_time"]=> string(19) "2024-04-10 13:15:09" ["created_user_id"]=> int(53) ["ordering"]=> int(5) ["language"]=> string(1) "*" ["fieldparams"]=> object(Joomla\Registry\Registry)#11090 (3) { ["data":protected]=> object(stdClass)#11095 (2) { ["filter"]=> string(0) "" ["maxlength"]=> string(0) "" } ["initialized":protected]=> bool(true) ["separator":protected]=> string(1) "." } ["params"]=> object(Joomla\Registry\Registry)#11092 (3) { ["data":protected]=> object(stdClass)#11097 (15) { ["hint"]=> string(0) "" ["class"]=> string(0) "" ["label_class"]=> string(0) "" ["show_on"]=> string(0) "" ["showon"]=> string(0) "" ["render_class"]=> string(0) "" ["value_render_class"]=> string(0) "" ["showlabel"]=> string(1) "1" ["label_render_class"]=> string(0) "" ["display"]=> string(1) "2" ["prefix"]=> string(0) "" ["suffix"]=> string(3) "m²" ["layout"]=> string(0) "" ["display_readonly"]=> string(1) "2" ["searchindex"]=> string(1) "0" } ["initialized":protected]=> bool(true) ["separator":protected]=> string(1) "." } ["type"]=> string(4) "text" ["default_value"]=> NULL ["context"]=> string(19) "com_content.article" ["group_id"]=> int(4) ["label"]=> string(8) "Erf size" ["description"]=> string(0) "" ["required"]=> int(0) ["only_use_in_subform"]=> int(0) ["language_title"]=> NULL ["language_image"]=> NULL ["editor"]=> NULL ["access_level"]=> string(6) "Public" ["author_name"]=> string(6) "Gaynor" ["group_title"]=> string(16) "Property Details" ["group_access"]=> int(1) ["group_state"]=> int(1) ["group_note"]=> string(0) "" ["value"]=> string(5) "21703" ["rawvalue"]=> string(5) "21703" } [72]=> object(stdClass)#10904 (33) { ["id"]=> int(72) ["title"]=> string(13) "Type of Title" ["name"]=> string(13) "type-of-title" ["checked_out"]=> NULL ["checked_out_time"]=> NULL ["note"]=> string(0) "" ["state"]=> int(1) ["access"]=> int(1) ["created_time"]=> string(19) "2024-10-14 14:13:41" ["created_user_id"]=> int(155) ["ordering"]=> int(6) ["language"]=> string(1) "*" ["fieldparams"]=> object(Joomla\Registry\Registry)#11094 (3) { ["data":protected]=> object(stdClass)#11099 (3) { ["header"]=> string(0) "" ["multiple"]=> string(0) "" ["options"]=> object(stdClass)#11101 (4) { ["options0"]=> object(stdClass)#11100 (2) { ["name"]=> string(8) "Freehold" ["value"]=> string(8) "Freehold" } ["options1"]=> object(stdClass)#11102 (2) { ["name"]=> string(15) "Sectional title" ["value"]=> string(15) "Sectional Title" } ["options2"]=> object(stdClass)#11103 (2) { ["name"]=> string(4) "None" ["value"]=> string(4) "None" } ["options3"]=> object(stdClass)#11104 (2) { ["name"]=> string(11) "Share Block" ["value"]=> string(11) "Share Block" } } } ["initialized":protected]=> bool(true) ["separator":protected]=> string(1) "." } ["params"]=> object(Joomla\Registry\Registry)#11096 (3) { ["data":protected]=> object(stdClass)#11106 (15) { ["class"]=> string(0) "" ["label_class"]=> string(0) "" ["show_on"]=> string(0) "" ["showon"]=> string(0) "" ["render_class"]=> string(0) "" ["value_render_class"]=> string(0) "" ["showlabel"]=> string(1) "1" ["label_render_class"]=> string(0) "" ["display"]=> string(1) "2" ["prefix"]=> string(0) "" ["suffix"]=> string(0) "" ["layout"]=> string(0) "" ["display_readonly"]=> string(1) "2" ["searchindex"]=> string(1) "0" ["form_layout"]=> string(22) "joomla.form.field.list" } ["initialized":protected]=> bool(true) ["separator":protected]=> string(1) "." } ["type"]=> string(4) "list" ["default_value"]=> string(0) "" ["context"]=> string(19) "com_content.article" ["group_id"]=> int(4) ["label"]=> string(27) "Freehold or Sectional title" ["description"]=> string(0) "" ["required"]=> int(0) ["only_use_in_subform"]=> int(0) ["language_title"]=> NULL ["language_image"]=> NULL ["editor"]=> NULL ["access_level"]=> string(6) "Public" ["author_name"]=> string(8) "Mohammed" ["group_title"]=> string(16) "Property Details" ["group_access"]=> int(1) ["group_state"]=> int(1) ["group_note"]=> string(0) "" ["value"]=> string(0) "" ["rawvalue"]=> array(1) { [0]=> string(0) "" } } [74]=> object(stdClass)#10905 (33) { ["id"]=> int(74) ["title"]=> string(20) "Gross Monthly Rental" ["name"]=> string(20) "gross-monthly-rental" ["checked_out"]=> NULL ["checked_out_time"]=> NULL ["note"]=> string(0) "" ["state"]=> int(1) ["access"]=> int(1) ["created_time"]=> string(19) "2024-10-14 14:36:25" ["created_user_id"]=> int(155) ["ordering"]=> int(7) ["language"]=> string(1) "*" ["fieldparams"]=> object(Joomla\Registry\Registry)#11098 (3) { ["data":protected]=> object(stdClass)#11108 (2) { ["filter"]=> string(0) "" ["maxlength"]=> string(0) "" } ["initialized":protected]=> bool(true) ["separator":protected]=> string(1) "." } ["params"]=> object(Joomla\Registry\Registry)#11105 (3) { ["data":protected]=> object(stdClass)#11110 (15) { ["hint"]=> string(0) "" ["class"]=> string(0) "" ["label_class"]=> string(0) "" ["show_on"]=> string(0) "" ["showon"]=> string(0) "" ["render_class"]=> string(0) "" ["value_render_class"]=> string(0) "" ["showlabel"]=> string(1) "1" ["label_render_class"]=> string(0) "" ["display"]=> string(1) "2" ["prefix"]=> string(6) " R" ["suffix"]=> string(1) " " ["layout"]=> string(0) "" ["display_readonly"]=> string(1) "2" ["searchindex"]=> string(1) "0" } ["initialized":protected]=> bool(true) ["separator":protected]=> string(1) "." } ["type"]=> string(4) "text" ["default_value"]=> NULL ["context"]=> string(19) "com_content.article" ["group_id"]=> int(5) ["label"]=> string(20) "Gross Monthly Rental" ["description"]=> string(0) "" ["required"]=> int(0) ["only_use_in_subform"]=> int(0) ["language_title"]=> NULL ["language_image"]=> NULL ["editor"]=> NULL ["access_level"]=> string(6) "Public" ["author_name"]=> string(8) "Mohammed" ["group_title"]=> string(15) "Pricing Details" ["group_access"]=> int(1) ["group_state"]=> int(1) ["group_note"]=> string(0) "" ["value"]=> string(6) "281980" ["rawvalue"]=> string(6) "281980" } [15]=> object(stdClass)#10895 (33) { ["id"]=> int(15) ["title"]=> string(8) "Currency" ["name"]=> string(8) "currency" ["checked_out"]=> NULL ["checked_out_time"]=> NULL ["note"]=> string(0) "" ["state"]=> int(1) ["access"]=> int(1) ["created_time"]=> string(19) "2022-07-26 02:04:15" ["created_user_id"]=> int(42) ["ordering"]=> int(8) ["language"]=> string(1) "*" ["fieldparams"]=> object(Joomla\Registry\Registry)#11107 (3) { ["data":protected]=> object(stdClass)#11112 (3) { ["header"]=> string(0) "" ["multiple"]=> string(0) "" ["options"]=> object(stdClass)#11114 (3) { ["options0"]=> object(stdClass)#11113 (2) { ["name"]=> string(1) "R" ["value"]=> string(3) "ZAR" } ["options1"]=> object(stdClass)#11115 (2) { ["name"]=> string(3) "€" ["value"]=> string(3) "EUR" } ["options2"]=> object(stdClass)#11116 (2) { ["name"]=> string(1) "$" ["value"]=> string(3) "USD" } } } ["initialized":protected]=> bool(true) ["separator":protected]=> string(1) "." } ["params"]=> object(Joomla\Registry\Registry)#11109 (3) { ["data":protected]=> object(stdClass)#11118 (15) { ["class"]=> string(0) "" ["label_class"]=> string(0) "" ["show_on"]=> string(0) "" ["showon"]=> string(0) "" ["render_class"]=> string(10) "r-currency" ["value_render_class"]=> string(0) "" ["showlabel"]=> string(1) "1" ["label_render_class"]=> string(10) "l-currency" ["display"]=> string(1) "2" ["prefix"]=> string(0) "" ["suffix"]=> string(0) "" ["layout"]=> string(0) "" ["display_readonly"]=> string(1) "2" ["searchindex"]=> string(1) "0" ["form_layout"]=> string(0) "" } ["initialized":protected]=> bool(true) ["separator":protected]=> string(1) "." } ["type"]=> string(4) "list" ["default_value"]=> string(0) "" ["context"]=> string(19) "com_content.article" ["group_id"]=> int(3) ["label"]=> string(8) "Currency" ["description"]=> string(0) "" ["required"]=> int(0) ["only_use_in_subform"]=> int(0) ["language_title"]=> NULL ["language_image"]=> NULL ["editor"]=> NULL ["access_level"]=> string(6) "Public" ["author_name"]=> string(14) "Lucien Paulsen" ["group_title"]=> string(15) "Property Fields" ["group_access"]=> int(1) ["group_state"]=> int(1) ["group_note"]=> string(0) "" ["value"]=> string(1) "R" ["rawvalue"]=> array(1) { [0]=> string(3) "ZAR" } } [73]=> object(stdClass)#10900 (33) { ["id"]=> int(73) ["title"]=> string(10) "Sale Price" ["name"]=> string(10) "sale-price" ["checked_out"]=> NULL ["checked_out_time"]=> NULL ["note"]=> string(0) "" ["state"]=> int(1) ["access"]=> int(1) ["created_time"]=> string(19) "2024-10-14 14:31:54" ["created_user_id"]=> int(155) ["ordering"]=> int(8) ["language"]=> string(1) "*" ["fieldparams"]=> object(Joomla\Registry\Registry)#11111 (3) { ["data":protected]=> object(stdClass)#11120 (2) { ["filter"]=> string(0) "" ["maxlength"]=> string(0) "" } ["initialized":protected]=> bool(true) ["separator":protected]=> string(1) "." } ["params"]=> object(Joomla\Registry\Registry)#11117 (3) { ["data":protected]=> object(stdClass)#11122 (15) { ["hint"]=> string(0) "" ["class"]=> string(0) "" ["label_class"]=> string(0) "" ["show_on"]=> string(0) "" ["showon"]=> string(0) "" ["render_class"]=> string(0) "" ["value_render_class"]=> string(0) "" ["showlabel"]=> string(1) "1" ["label_render_class"]=> string(0) "" ["display"]=> string(1) "2" ["prefix"]=> string(1) "R" ["suffix"]=> string(4) "/m²" ["layout"]=> string(0) "" ["display_readonly"]=> string(1) "2" ["searchindex"]=> string(1) "0" } ["initialized":protected]=> bool(true) ["separator":protected]=> string(1) "." } ["type"]=> string(4) "text" ["default_value"]=> NULL ["context"]=> string(19) "com_content.article" ["group_id"]=> int(5) ["label"]=> string(10) "Sale Price" ["description"]=> string(0) "" ["required"]=> int(0) ["only_use_in_subform"]=> int(0) ["language_title"]=> NULL ["language_image"]=> NULL ["editor"]=> NULL ["access_level"]=> string(6) "Public" ["author_name"]=> string(8) "Mohammed" ["group_title"]=> string(15) "Pricing Details" ["group_access"]=> int(1) ["group_state"]=> int(1) ["group_note"]=> string(0) "" ["value"]=> string(2) "92" ["rawvalue"]=> string(2) "92" } [7]=> object(stdClass)#10901 (33) { ["id"]=> int(7) ["title"]=> string(5) "Price" ["name"]=> string(5) "price" ["checked_out"]=> NULL ["checked_out_time"]=> NULL ["note"]=> string(0) "" ["state"]=> int(1) ["access"]=> int(1) ["created_time"]=> string(19) "2022-07-26 02:04:15" ["created_user_id"]=> int(42) ["ordering"]=> int(9) ["language"]=> string(1) "*" ["fieldparams"]=> object(Joomla\Registry\Registry)#11119 (3) { ["data":protected]=> object(stdClass)#11124 (2) { ["filter"]=> string(49) "\Joomla\CMS\Component\ComponentHelper::filterText" ["maxlength"]=> string(0) "" } ["initialized":protected]=> bool(true) ["separator":protected]=> string(1) "." } ["params"]=> object(Joomla\Registry\Registry)#11121 (3) { ["data":protected]=> object(stdClass)#11126 (15) { ["hint"]=> string(0) "" ["class"]=> string(0) "" ["label_class"]=> string(0) "" ["show_on"]=> string(0) "" ["showon"]=> string(0) "" ["render_class"]=> string(7) "r-price" ["value_render_class"]=> string(0) "" ["showlabel"]=> string(1) "1" ["label_render_class"]=> string(7) "l-price" ["display"]=> string(1) "2" ["prefix"]=> string(1) "R" ["suffix"]=> string(2) "mo" ["layout"]=> string(0) "" ["display_readonly"]=> string(1) "2" ["searchindex"]=> string(1) "0" } ["initialized":protected]=> bool(true) ["separator":protected]=> string(1) "." } ["type"]=> string(4) "text" ["default_value"]=> string(0) "" ["context"]=> string(19) "com_content.article" ["group_id"]=> int(3) ["label"]=> string(5) "Price" ["description"]=> string(0) "" ["required"]=> int(0) ["only_use_in_subform"]=> int(0) ["language_title"]=> NULL ["language_image"]=> NULL ["editor"]=> NULL ["access_level"]=> string(6) "Public" ["author_name"]=> string(14) "Lucien Paulsen" ["group_title"]=> string(15) "Property Fields" ["group_access"]=> int(1) ["group_state"]=> int(1) ["group_note"]=> string(0) "" ["value"]=> string(2) "92" ["rawvalue"]=> string(2) "92" } [68]=> object(stdClass)#10902 (33) { ["id"]=> int(68) ["title"]=> string(11) "Power Phase" ["name"]=> string(5) "phase" ["checked_out"]=> NULL ["checked_out_time"]=> NULL ["note"]=> string(0) "" ["state"]=> int(1) ["access"]=> int(1) ["created_time"]=> string(19) "2024-10-14 12:47:36" ["created_user_id"]=> int(155) ["ordering"]=> int(9) ["language"]=> string(1) "*" ["fieldparams"]=> object(Joomla\Registry\Registry)#11123 (3) { ["data":protected]=> object(stdClass)#11128 (2) { ["filter"]=> string(0) "" ["maxlength"]=> string(0) "" } ["initialized":protected]=> bool(true) ["separator":protected]=> string(1) "." } ["params"]=> object(Joomla\Registry\Registry)#11125 (3) { ["data":protected]=> object(stdClass)#11130 (15) { ["hint"]=> string(0) "" ["class"]=> string(0) "" ["label_class"]=> string(0) "" ["show_on"]=> string(0) "" ["showon"]=> string(0) "" ["render_class"]=> string(0) "" ["value_render_class"]=> string(0) "" ["showlabel"]=> string(1) "1" ["label_render_class"]=> string(0) "" ["display"]=> string(1) "2" ["prefix"]=> string(0) "" ["suffix"]=> string(0) "" ["layout"]=> string(0) "" ["display_readonly"]=> string(1) "2" ["searchindex"]=> string(1) "0" } ["initialized":protected]=> bool(true) ["separator":protected]=> string(1) "." } ["type"]=> string(4) "text" ["default_value"]=> NULL ["context"]=> string(19) "com_content.article" ["group_id"]=> int(4) ["label"]=> string(11) "Power Phase" ["description"]=> string(0) "" ["required"]=> int(0) ["only_use_in_subform"]=> int(0) ["language_title"]=> NULL ["language_image"]=> NULL ["editor"]=> NULL ["access_level"]=> string(6) "Public" ["author_name"]=> string(8) "Mohammed" ["group_title"]=> string(16) "Property Details" ["group_access"]=> int(1) ["group_state"]=> int(1) ["group_note"]=> string(0) "" ["value"]=> string(3) "Yes" ["rawvalue"]=> string(3) "Yes" } [16]=> object(stdClass)#10897 (33) { ["id"]=> int(16) ["title"]=> string(14) "Value of Price" ["name"]=> string(14) "value-of-price" ["checked_out"]=> NULL ["checked_out_time"]=> NULL ["note"]=> string(0) "" ["state"]=> int(1) ["access"]=> int(1) ["created_time"]=> string(19) "2022-07-26 02:04:15" ["created_user_id"]=> int(42) ["ordering"]=> int(10) ["language"]=> string(1) "*" ["fieldparams"]=> object(Joomla\Registry\Registry)#11127 (3) { ["data":protected]=> object(stdClass)#11132 (3) { ["header"]=> string(0) "" ["multiple"]=> string(0) "" ["options"]=> object(stdClass)#11134 (2) { ["options0"]=> object(stdClass)#11133 (2) { ["name"]=> string(2) "m2" ["value"]=> string(2) "m2" } ["options1"]=> object(stdClass)#11135 (2) { ["name"]=> string(5) "month" ["value"]=> string(5) "month" } } } ["initialized":protected]=> bool(true) ["separator":protected]=> string(1) "." } ["params"]=> object(Joomla\Registry\Registry)#11129 (3) { ["data":protected]=> object(stdClass)#11137 (15) { ["class"]=> string(0) "" ["label_class"]=> string(0) "" ["show_on"]=> string(0) "" ["showon"]=> string(0) "" ["render_class"]=> string(16) "r-value-of-price" ["value_render_class"]=> string(0) "" ["showlabel"]=> string(1) "1" ["label_render_class"]=> string(16) "l-value-of-price" ["display"]=> string(1) "2" ["prefix"]=> string(0) "" ["suffix"]=> string(0) "" ["layout"]=> string(0) "" ["display_readonly"]=> string(1) "2" ["searchindex"]=> string(1) "0" ["form_layout"]=> string(0) "" } ["initialized":protected]=> bool(true) ["separator":protected]=> string(1) "." } ["type"]=> string(4) "list" ["default_value"]=> string(5) "month" ["context"]=> string(19) "com_content.article" ["group_id"]=> int(3) ["label"]=> string(14) "Value of Price" ["description"]=> string(0) "" ["required"]=> int(0) ["only_use_in_subform"]=> int(0) ["language_title"]=> NULL ["language_image"]=> NULL ["editor"]=> NULL ["access_level"]=> string(6) "Public" ["author_name"]=> string(14) "Lucien Paulsen" ["group_title"]=> string(15) "Property Fields" ["group_access"]=> int(1) ["group_state"]=> int(1) ["group_note"]=> string(0) "" ["value"]=> string(5) "month" ["rawvalue"]=> array(1) { [0]=> string(5) "month" } } [52]=> object(stdClass)#10898 (33) { ["id"]=> int(52) ["title"]=> string(20) "Availability of amps" ["name"]=> string(20) "availability-of-amps" ["checked_out"]=> NULL ["checked_out_time"]=> NULL ["note"]=> string(0) "" ["state"]=> int(1) ["access"]=> int(1) ["created_time"]=> string(19) "2024-04-10 13:14:01" ["created_user_id"]=> int(53) ["ordering"]=> int(10) ["language"]=> string(1) "*" ["fieldparams"]=> object(Joomla\Registry\Registry)#11131 (3) { ["data":protected]=> object(stdClass)#11139 (2) { ["filter"]=> string(0) "" ["maxlength"]=> string(0) "" } ["initialized":protected]=> bool(true) ["separator":protected]=> string(1) "." } ["params"]=> object(Joomla\Registry\Registry)#11136 (3) { ["data":protected]=> object(stdClass)#11141 (15) { ["hint"]=> string(0) "" ["class"]=> string(0) "" ["label_class"]=> string(0) "" ["show_on"]=> string(0) "" ["showon"]=> string(0) "" ["render_class"]=> string(0) "" ["value_render_class"]=> string(0) "" ["showlabel"]=> string(1) "1" ["label_render_class"]=> string(0) "" ["display"]=> string(1) "2" ["prefix"]=> string(0) "" ["suffix"]=> string(0) "" ["layout"]=> string(0) "" ["display_readonly"]=> string(1) "2" ["searchindex"]=> string(1) "0" } ["initialized":protected]=> bool(true) ["separator":protected]=> string(1) "." } ["type"]=> string(4) "text" ["default_value"]=> NULL ["context"]=> string(19) "com_content.article" ["group_id"]=> int(4) ["label"]=> string(20) "Availability of amps" ["description"]=> string(0) "" ["required"]=> int(0) ["only_use_in_subform"]=> int(0) ["language_title"]=> NULL ["language_image"]=> NULL ["editor"]=> NULL ["access_level"]=> string(6) "Public" ["author_name"]=> string(6) "Gaynor" ["group_title"]=> string(16) "Property Details" ["group_access"]=> int(1) ["group_state"]=> int(1) ["group_note"]=> string(0) "" ["value"]=> string(3) "Yes" ["rawvalue"]=> string(3) "Yes" } [9]=> object(stdClass)#10899 (33) { ["id"]=> int(9) ["title"]=> string(7) "Address" ["name"]=> string(7) "address" ["checked_out"]=> NULL ["checked_out_time"]=> NULL ["note"]=> string(0) "" ["state"]=> int(1) ["access"]=> int(1) ["created_time"]=> string(19) "2022-07-26 02:04:15" ["created_user_id"]=> int(42) ["ordering"]=> int(11) ["language"]=> string(1) "*" ["fieldparams"]=> object(Joomla\Registry\Registry)#11138 (3) { ["data":protected]=> object(stdClass)#11143 (2) { ["filter"]=> string(0) "" ["maxlength"]=> string(0) "" } ["initialized":protected]=> bool(true) ["separator":protected]=> string(1) "." } ["params"]=> object(Joomla\Registry\Registry)#11140 (3) { ["data":protected]=> object(stdClass)#11145 (10) { ["hint"]=> string(0) "" ["class"]=> string(0) "" ["label_class"]=> string(0) "" ["show_on"]=> string(0) "" ["render_class"]=> string(9) "r-address" ["showlabel"]=> string(1) "1" ["label_render_class"]=> string(9) "l-address" ["display"]=> string(1) "2" ["layout"]=> string(0) "" ["display_readonly"]=> string(1) "2" } ["initialized":protected]=> bool(true) ["separator":protected]=> string(1) "." } ["type"]=> string(4) "text" ["default_value"]=> NULL ["context"]=> string(19) "com_content.article" ["group_id"]=> int(3) ["label"]=> string(7) "Address" ["description"]=> string(0) "" ["required"]=> int(0) ["only_use_in_subform"]=> int(0) ["language_title"]=> NULL ["language_image"]=> NULL ["editor"]=> NULL ["access_level"]=> string(6) "Public" ["author_name"]=> string(14) "Lucien Paulsen" ["group_title"]=> string(15) "Property Fields" ["group_access"]=> int(1) ["group_state"]=> int(1) ["group_note"]=> string(0) "" ["value"]=> string(0) "" ["rawvalue"]=> NULL } [76]=> object(stdClass)#10885 (33) { ["id"]=> int(76) ["title"]=> string(12) "Fire systems" ["name"]=> string(12) "fire-systems" ["checked_out"]=> NULL ["checked_out_time"]=> NULL ["note"]=> string(0) "" ["state"]=> int(1) ["access"]=> int(1) ["created_time"]=> string(19) "2024-10-14 14:48:17" ["created_user_id"]=> int(155) ["ordering"]=> int(11) ["language"]=> string(1) "*" ["fieldparams"]=> object(Joomla\Registry\Registry)#11142 (3) { ["data":protected]=> object(stdClass)#11151 (1) { ["options"]=> object(stdClass)#11148 (3) { ["options0"]=> object(stdClass)#11147 (2) { ["name"]=> string(3) "Yes" ["value"]=> string(3) "yes" } ["options1"]=> object(stdClass)#11149 (2) { ["name"]=> string(2) "No" ["value"]=> string(2) "no" } ["options2"]=> object(stdClass)#11150 (2) { ["name"]=> string(2) "No" ["value"]=> string(0) "" } } } ["initialized":protected]=> bool(true) ["separator":protected]=> string(1) "." } ["params"]=> object(Joomla\Registry\Registry)#11144 (3) { ["data":protected]=> object(stdClass)#11153 (16) { ["hint"]=> string(0) "" ["class"]=> string(9) "btn-group" ["label_class"]=> string(0) "" ["show_on"]=> string(0) "" ["showon"]=> string(0) "" ["render_class"]=> string(0) "" ["value_render_class"]=> string(0) "" ["showlabel"]=> string(1) "1" ["label_render_class"]=> string(0) "" ["display"]=> string(1) "2" ["prefix"]=> string(0) "" ["suffix"]=> string(0) "" ["layout"]=> string(0) "" ["display_readonly"]=> string(1) "2" ["searchindex"]=> string(1) "0" ["form_layout"]=> string(31) "joomla.form.field.radio.buttons" } ["initialized":protected]=> bool(true) ["separator":protected]=> string(1) "." } ["type"]=> string(5) "radio" ["default_value"]=> string(0) "" ["context"]=> string(19) "com_content.article" ["group_id"]=> int(3) ["label"]=> string(12) "Fire systems" ["description"]=> string(0) "" ["required"]=> int(0) ["only_use_in_subform"]=> int(0) ["language_title"]=> NULL ["language_image"]=> NULL ["editor"]=> NULL ["access_level"]=> string(6) "Public" ["author_name"]=> string(8) "Mohammed" ["group_title"]=> string(15) "Property Fields" ["group_access"]=> int(1) ["group_state"]=> int(1) ["group_note"]=> string(0) "" ["value"]=> string(2) "No" ["rawvalue"]=> string(2) "no" } [10]=> object(stdClass)#11301 (33) { ["id"]=> int(10) ["title"]=> string(18) "Latitude/Longitude" ["name"]=> string(7) "latlong" ["checked_out"]=> NULL ["checked_out_time"]=> NULL ["note"]=> string(0) "" ["state"]=> int(1) ["access"]=> int(1) ["created_time"]=> string(19) "2022-07-26 02:04:15" ["created_user_id"]=> int(42) ["ordering"]=> int(12) ["language"]=> string(1) "*" ["fieldparams"]=> object(Joomla\Registry\Registry)#11146 (3) { ["data":protected]=> object(stdClass)#11155 (2) { ["filter"]=> string(49) "\Joomla\CMS\Component\ComponentHelper::filterText" ["maxlength"]=> string(0) "" } ["initialized":protected]=> bool(true) ["separator":protected]=> string(1) "." } ["params"]=> object(Joomla\Registry\Registry)#11152 (3) { ["data":protected]=> object(stdClass)#11157 (15) { ["hint"]=> string(18) "Latitude,Longitude" ["class"]=> string(0) "" ["label_class"]=> string(0) "" ["show_on"]=> string(0) "" ["showon"]=> string(0) "" ["render_class"]=> string(9) "r-latlong" ["value_render_class"]=> string(0) "" ["showlabel"]=> string(1) "1" ["label_render_class"]=> string(9) "l-latlong" ["display"]=> string(1) "2" ["prefix"]=> string(0) "" ["suffix"]=> string(0) "" ["layout"]=> string(0) "" ["display_readonly"]=> string(1) "2" ["searchindex"]=> string(1) "0" } ["initialized":protected]=> bool(true) ["separator":protected]=> string(1) "." } ["type"]=> string(4) "text" ["default_value"]=> string(0) "" ["context"]=> string(19) "com_content.article" ["group_id"]=> int(3) ["label"]=> string(18) "Latitude/Longitude" ["description"]=> string(0) "" ["required"]=> int(0) ["only_use_in_subform"]=> int(0) ["language_title"]=> NULL ["language_image"]=> NULL ["editor"]=> NULL ["access_level"]=> string(6) "Public" ["author_name"]=> string(14) "Lucien Paulsen" ["group_title"]=> string(15) "Property Fields" ["group_access"]=> int(1) ["group_state"]=> int(1) ["group_note"]=> string(0) "" ["value"]=> string(18) "-33.95659,18.68744" ["rawvalue"]=> string(18) "-33.95659,18.68744" } [80]=> object(stdClass)#11311 (33) { ["id"]=> int(80) ["title"]=> string(24) "Alternative water supply" ["name"]=> string(24) "alternative-water-supply" ["checked_out"]=> NULL ["checked_out_time"]=> NULL ["note"]=> string(0) "" ["state"]=> int(1) ["access"]=> int(1) ["created_time"]=> string(19) "2024-10-14 11:06:06" ["created_user_id"]=> int(155) ["ordering"]=> int(12) ["language"]=> string(1) "*" ["fieldparams"]=> object(Joomla\Registry\Registry)#11154 (3) { ["data":protected]=> object(stdClass)#11159 (2) { ["filter"]=> string(0) "" ["maxlength"]=> string(0) "" } ["initialized":protected]=> bool(true) ["separator":protected]=> string(1) "." } ["params"]=> object(Joomla\Registry\Registry)#11156 (3) { ["data":protected]=> object(stdClass)#11161 (15) { ["hint"]=> string(0) "" ["class"]=> string(0) "" ["label_class"]=> string(0) "" ["show_on"]=> string(0) "" ["showon"]=> string(0) "" ["render_class"]=> string(0) "" ["value_render_class"]=> string(0) "" ["showlabel"]=> string(1) "1" ["label_render_class"]=> string(0) "" ["display"]=> string(1) "2" ["prefix"]=> string(0) "" ["suffix"]=> string(0) "" ["layout"]=> string(0) "" ["display_readonly"]=> string(1) "2" ["searchindex"]=> string(1) "0" } ["initialized":protected]=> bool(true) ["separator":protected]=> string(1) "." } ["type"]=> string(4) "text" ["default_value"]=> NULL ["context"]=> string(19) "com_content.article" ["group_id"]=> int(3) ["label"]=> string(24) "Alternative water supply" ["description"]=> string(0) "" ["required"]=> int(0) ["only_use_in_subform"]=> int(0) ["language_title"]=> NULL ["language_image"]=> NULL ["editor"]=> NULL ["access_level"]=> string(6) "Public" ["author_name"]=> string(8) "Mohammed" ["group_title"]=> string(15) "Property Fields" ["group_access"]=> int(1) ["group_state"]=> int(1) ["group_note"]=> string(0) "" ["value"]=> string(26) "{{alternativeWaterSupply}}" ["rawvalue"]=> string(26) "{{alternativeWaterSupply}}" } [13]=> object(stdClass)#11314 (33) { ["id"]=> int(13) ["title"]=> string(12) "Rent or Sale" ["name"]=> string(12) "rent-or-sale" ["checked_out"]=> NULL ["checked_out_time"]=> NULL ["note"]=> string(0) "" ["state"]=> int(1) ["access"]=> int(1) ["created_time"]=> string(19) "2022-07-26 02:04:15" ["created_user_id"]=> int(42) ["ordering"]=> int(13) ["language"]=> string(1) "*" ["fieldparams"]=> object(Joomla\Registry\Registry)#11158 (3) { ["data":protected]=> object(stdClass)#11170 (1) { ["options"]=> object(stdClass)#11164 (6) { ["options0"]=> object(stdClass)#11163 (2) { ["name"]=> string(8) "For Rent" ["value"]=> string(6) "Rental" } ["options1"]=> object(stdClass)#11165 (2) { ["name"]=> string(8) "For Sale" ["value"]=> string(8) "For Sale" } ["options2"]=> object(stdClass)#11166 (2) { ["name"]=> string(8) "For Sale" ["value"]=> string(4) "Sale" } ["options3"]=> object(stdClass)#11167 (2) { ["name"]=> string(8) "For Rent" ["value"]=> string(4) "Rent" } ["options4"]=> object(stdClass)#11168 (2) { ["name"]=> string(8) "For Rent" ["value"]=> string(4) "rent" } ["options5"]=> object(stdClass)#11169 (2) { ["name"]=> string(8) "For Sale" ["value"]=> string(4) "sale" } } } ["initialized":protected]=> bool(true) ["separator":protected]=> string(1) "." } ["params"]=> object(Joomla\Registry\Registry)#11160 (3) { ["data":protected]=> object(stdClass)#11172 (16) { ["hint"]=> string(0) "" ["class"]=> string(9) "btn-group" ["label_class"]=> string(0) "" ["show_on"]=> string(0) "" ["showon"]=> string(0) "" ["render_class"]=> string(6) "r-type" ["value_render_class"]=> string(0) "" ["showlabel"]=> string(1) "1" ["label_render_class"]=> string(6) "l-type" ["display"]=> string(1) "2" ["prefix"]=> string(0) "" ["suffix"]=> string(0) "" ["layout"]=> string(0) "" ["display_readonly"]=> string(1) "2" ["searchindex"]=> string(1) "0" ["form_layout"]=> string(0) "" } ["initialized":protected]=> bool(true) ["separator":protected]=> string(1) "." } ["type"]=> string(5) "radio" ["default_value"]=> string(0) "" ["context"]=> string(19) "com_content.article" ["group_id"]=> int(3) ["label"]=> string(12) "Rent or Sale" ["description"]=> string(0) "" ["required"]=> int(0) ["only_use_in_subform"]=> int(0) ["language_title"]=> NULL ["language_image"]=> NULL ["editor"]=> NULL ["access_level"]=> string(6) "Public" ["author_name"]=> string(14) "Lucien Paulsen" ["group_title"]=> string(15) "Property Fields" ["group_access"]=> int(1) ["group_state"]=> int(1) ["group_note"]=> string(0) "" ["value"]=> string(8) "For Rent" ["rawvalue"]=> string(6) "Rental" } [67]=> object(stdClass)#11305 (33) { ["id"]=> int(67) ["title"]=> string(30) "Amount of Roller shutter doors" ["name"]=> string(30) "amount-of-roller-shutter-doors" ["checked_out"]=> NULL ["checked_out_time"]=> NULL ["note"]=> string(0) "" ["state"]=> int(1) ["access"]=> int(1) ["created_time"]=> string(19) "2024-10-14 12:45:46" ["created_user_id"]=> int(155) ["ordering"]=> int(13) ["language"]=> string(1) "*" ["fieldparams"]=> object(Joomla\Registry\Registry)#11162 (3) { ["data":protected]=> object(stdClass)#11174 (2) { ["filter"]=> string(0) "" ["maxlength"]=> string(0) "" } ["initialized":protected]=> bool(true) ["separator":protected]=> string(1) "." } ["params"]=> object(Joomla\Registry\Registry)#11171 (3) { ["data":protected]=> object(stdClass)#11176 (15) { ["hint"]=> string(0) "" ["class"]=> string(0) "" ["label_class"]=> string(0) "" ["show_on"]=> string(0) "" ["showon"]=> string(0) "" ["render_class"]=> string(0) "" ["value_render_class"]=> string(0) "" ["showlabel"]=> string(1) "1" ["label_render_class"]=> string(0) "" ["display"]=> string(1) "2" ["prefix"]=> string(0) "" ["suffix"]=> string(0) "" ["layout"]=> string(0) "" ["display_readonly"]=> string(1) "2" ["searchindex"]=> string(1) "0" } ["initialized":protected]=> bool(true) ["separator":protected]=> string(1) "." } ["type"]=> string(4) "text" ["default_value"]=> NULL ["context"]=> string(19) "com_content.article" ["group_id"]=> int(4) ["label"]=> string(30) "Amount of Roller shutter doors" ["description"]=> string(0) "" ["required"]=> int(0) ["only_use_in_subform"]=> int(0) ["language_title"]=> NULL ["language_image"]=> NULL ["editor"]=> NULL ["access_level"]=> string(6) "Public" ["author_name"]=> string(8) "Mohammed" ["group_title"]=> string(16) "Property Details" ["group_access"]=> int(1) ["group_state"]=> int(1) ["group_note"]=> string(0) "" ["value"]=> string(0) "" ["rawvalue"]=> NULL } [81]=> object(stdClass)#11315 (33) { ["id"]=> int(81) ["title"]=> string(24) "Alternative power supply" ["name"]=> string(24) "alternative-power-supply" ["checked_out"]=> NULL ["checked_out_time"]=> NULL ["note"]=> string(0) "" ["state"]=> int(1) ["access"]=> int(1) ["created_time"]=> string(19) "2024-10-14 13:06:14" ["created_user_id"]=> int(155) ["ordering"]=> int(14) ["language"]=> string(1) "*" ["fieldparams"]=> object(Joomla\Registry\Registry)#11173 (3) { ["data":protected]=> object(stdClass)#11178 (2) { ["filter"]=> string(0) "" ["maxlength"]=> string(0) "" } ["initialized":protected]=> bool(true) ["separator":protected]=> string(1) "." } ["params"]=> object(Joomla\Registry\Registry)#11175 (3) { ["data":protected]=> object(stdClass)#11180 (15) { ["hint"]=> string(0) "" ["class"]=> string(0) "" ["label_class"]=> string(0) "" ["show_on"]=> string(0) "" ["showon"]=> string(0) "" ["render_class"]=> string(0) "" ["value_render_class"]=> string(0) "" ["showlabel"]=> string(1) "1" ["label_render_class"]=> string(0) "" ["display"]=> string(1) "2" ["prefix"]=> string(0) "" ["suffix"]=> string(0) "" ["layout"]=> string(0) "" ["display_readonly"]=> string(1) "2" ["searchindex"]=> string(1) "0" } ["initialized":protected]=> bool(true) ["separator":protected]=> string(1) "." } ["type"]=> string(4) "text" ["default_value"]=> NULL ["context"]=> string(19) "com_content.article" ["group_id"]=> int(3) ["label"]=> string(24) "Alternative power supply" ["description"]=> string(0) "" ["required"]=> int(0) ["only_use_in_subform"]=> int(0) ["language_title"]=> NULL ["language_image"]=> NULL ["editor"]=> NULL ["access_level"]=> string(6) "Public" ["author_name"]=> string(8) "Mohammed" ["group_title"]=> string(15) "Property Fields" ["group_access"]=> int(1) ["group_state"]=> int(1) ["group_note"]=> string(0) "" ["value"]=> string(26) "{{alternativePowerSupply}}" ["rawvalue"]=> string(26) "{{alternativePowerSupply}}" } [70]=> object(stdClass)#11312 (33) { ["id"]=> int(70) ["title"]=> string(16) "Physical Address" ["name"]=> string(16) "physical-address" ["checked_out"]=> NULL ["checked_out_time"]=> NULL ["note"]=> string(0) "" ["state"]=> int(1) ["access"]=> int(1) ["created_time"]=> string(19) "2024-10-14 13:06:14" ["created_user_id"]=> int(155) ["ordering"]=> int(15) ["language"]=> string(1) "*" ["fieldparams"]=> object(Joomla\Registry\Registry)#11177 (3) { ["data":protected]=> object(stdClass)#11182 (2) { ["filter"]=> string(0) "" ["maxlength"]=> string(0) "" } ["initialized":protected]=> bool(true) ["separator":protected]=> string(1) "." } ["params"]=> object(Joomla\Registry\Registry)#11179 (3) { ["data":protected]=> object(stdClass)#11184 (15) { ["hint"]=> string(0) "" ["class"]=> string(0) "" ["label_class"]=> string(0) "" ["show_on"]=> string(0) "" ["showon"]=> string(0) "" ["render_class"]=> string(0) "" ["value_render_class"]=> string(0) "" ["showlabel"]=> string(1) "1" ["label_render_class"]=> string(0) "" ["display"]=> string(1) "2" ["prefix"]=> string(0) "" ["suffix"]=> string(0) "" ["layout"]=> string(0) "" ["display_readonly"]=> string(1) "2" ["searchindex"]=> string(1) "0" } ["initialized":protected]=> bool(true) ["separator":protected]=> string(1) "." } ["type"]=> string(4) "text" ["default_value"]=> NULL ["context"]=> string(19) "com_content.article" ["group_id"]=> int(3) ["label"]=> string(16) "Physical Address" ["description"]=> string(0) "" ["required"]=> int(0) ["only_use_in_subform"]=> int(0) ["language_title"]=> NULL ["language_image"]=> NULL ["editor"]=> NULL ["access_level"]=> string(6) "Public" ["author_name"]=> string(8) "Mohammed" ["group_title"]=> string(15) "Property Fields" ["group_access"]=> int(1) ["group_state"]=> int(1) ["group_note"]=> string(0) "" ["value"]=> string(0) "" ["rawvalue"]=> NULL } [66]=> object(stdClass)#11317 (33) { ["id"]=> int(66) ["title"]=> string(12) "Eaves height" ["name"]=> string(12) "eaves-height" ["checked_out"]=> NULL ["checked_out_time"]=> NULL ["note"]=> string(0) "" ["state"]=> int(1) ["access"]=> int(1) ["created_time"]=> string(19) "2024-10-14 11:06:06" ["created_user_id"]=> int(155) ["ordering"]=> int(16) ["language"]=> string(1) "*" ["fieldparams"]=> object(Joomla\Registry\Registry)#11181 (3) { ["data":protected]=> object(stdClass)#11186 (2) { ["filter"]=> string(0) "" ["maxlength"]=> string(0) "" } ["initialized":protected]=> bool(true) ["separator":protected]=> string(1) "." } ["params"]=> object(Joomla\Registry\Registry)#11183 (3) { ["data":protected]=> object(stdClass)#11188 (15) { ["hint"]=> string(0) "" ["class"]=> string(0) "" ["label_class"]=> string(0) "" ["show_on"]=> string(0) "" ["showon"]=> string(0) "" ["render_class"]=> string(0) "" ["value_render_class"]=> string(0) "" ["showlabel"]=> string(1) "1" ["label_render_class"]=> string(0) "" ["display"]=> string(1) "2" ["prefix"]=> string(0) "" ["suffix"]=> string(0) "" ["layout"]=> string(0) "" ["display_readonly"]=> string(1) "2" ["searchindex"]=> string(1) "0" } ["initialized":protected]=> bool(true) ["separator":protected]=> string(1) "." } ["type"]=> string(4) "text" ["default_value"]=> NULL ["context"]=> string(19) "com_content.article" ["group_id"]=> int(4) ["label"]=> string(12) "Eaves height" ["description"]=> string(0) "" ["required"]=> int(0) ["only_use_in_subform"]=> int(0) ["language_title"]=> NULL ["language_image"]=> NULL ["editor"]=> NULL ["access_level"]=> string(6) "Public" ["author_name"]=> string(8) "Mohammed" ["group_title"]=> string(16) "Property Details" ["group_access"]=> int(1) ["group_state"]=> int(1) ["group_note"]=> string(0) "" ["value"]=> string(0) "" ["rawvalue"]=> NULL } [39]=> object(stdClass)#11322 (33) { ["id"]=> int(39) ["title"]=> string(10) "Floor Size" ["name"]=> string(10) "floor-size" ["checked_out"]=> NULL ["checked_out_time"]=> NULL ["note"]=> string(0) "" ["state"]=> int(1) ["access"]=> int(1) ["created_time"]=> string(19) "2024-04-10 13:15:23" ["created_user_id"]=> int(53) ["ordering"]=> int(17) ["language"]=> string(1) "*" ["fieldparams"]=> object(Joomla\Registry\Registry)#11185 (3) { ["data":protected]=> object(stdClass)#11190 (2) { ["filter"]=> string(0) "" ["maxlength"]=> string(0) "" } ["initialized":protected]=> bool(true) ["separator":protected]=> string(1) "." } ["params"]=> object(Joomla\Registry\Registry)#11187 (3) { ["data":protected]=> object(stdClass)#11192 (15) { ["hint"]=> string(0) "" ["class"]=> string(0) "" ["label_class"]=> string(0) "" ["show_on"]=> string(0) "" ["showon"]=> string(0) "" ["render_class"]=> string(0) "" ["value_render_class"]=> string(0) "" ["showlabel"]=> string(1) "1" ["label_render_class"]=> string(0) "" ["display"]=> string(1) "2" ["prefix"]=> string(0) "" ["suffix"]=> string(3) "m²" ["layout"]=> string(0) "" ["display_readonly"]=> string(1) "2" ["searchindex"]=> string(1) "0" } ["initialized":protected]=> bool(true) ["separator":protected]=> string(1) "." } ["type"]=> string(4) "text" ["default_value"]=> NULL ["context"]=> string(19) "com_content.article" ["group_id"]=> int(4) ["label"]=> string(10) "Floor Size" ["description"]=> string(0) "" ["required"]=> int(0) ["only_use_in_subform"]=> int(0) ["language_title"]=> NULL ["language_image"]=> NULL ["editor"]=> NULL ["access_level"]=> string(6) "Public" ["author_name"]=> string(6) "Gaynor" ["group_title"]=> string(16) "Property Details" ["group_access"]=> int(1) ["group_state"]=> int(1) ["group_note"]=> string(0) "" ["value"]=> string(4) "3065" ["rawvalue"]=> string(4) "3065" } [26]=> object(stdClass)#11316 (33) { ["id"]=> int(26) ["title"]=> string(20) "Security Information" ["name"]=> string(20) "security-information" ["checked_out"]=> NULL ["checked_out_time"]=> NULL ["note"]=> string(0) "" ["state"]=> int(1) ["access"]=> int(1) ["created_time"]=> string(19) "2024-04-10 13:11:11" ["created_user_id"]=> int(53) ["ordering"]=> int(18) ["language"]=> string(1) "*" ["fieldparams"]=> object(Joomla\Registry\Registry)#11189 (3) { ["data":protected]=> object(stdClass)#11194 (2) { ["filter"]=> string(0) "" ["maxlength"]=> string(0) "" } ["initialized":protected]=> bool(true) ["separator":protected]=> string(1) "." } ["params"]=> object(Joomla\Registry\Registry)#11191 (3) { ["data":protected]=> object(stdClass)#11196 (15) { ["hint"]=> string(0) "" ["class"]=> string(0) "" ["label_class"]=> string(0) "" ["show_on"]=> string(0) "" ["showon"]=> string(0) "" ["render_class"]=> string(0) "" ["value_render_class"]=> string(0) "" ["showlabel"]=> string(1) "1" ["label_render_class"]=> string(0) "" ["display"]=> string(1) "2" ["prefix"]=> string(0) "" ["suffix"]=> string(0) "" ["layout"]=> string(0) "" ["display_readonly"]=> string(1) "2" ["searchindex"]=> string(1) "0" } ["initialized":protected]=> bool(true) ["separator":protected]=> string(1) "." } ["type"]=> string(4) "text" ["default_value"]=> NULL ["context"]=> string(19) "com_content.article" ["group_id"]=> int(4) ["label"]=> string(20) "Security Information" ["description"]=> string(0) "" ["required"]=> int(0) ["only_use_in_subform"]=> int(0) ["language_title"]=> NULL ["language_image"]=> NULL ["editor"]=> NULL ["access_level"]=> string(6) "Public" ["author_name"]=> string(6) "Gaynor" ["group_title"]=> string(16) "Property Details" ["group_access"]=> int(1) ["group_state"]=> int(1) ["group_note"]=> string(0) "" ["value"]=> string(0) "" ["rawvalue"]=> NULL } [40]=> object(stdClass)#11318 (33) { ["id"]=> int(40) ["title"]=> string(15) "Building Height" ["name"]=> string(15) "building-height" ["checked_out"]=> NULL ["checked_out_time"]=> NULL ["note"]=> string(0) "" ["state"]=> int(1) ["access"]=> int(1) ["created_time"]=> string(19) "2024-04-10 13:15:49" ["created_user_id"]=> int(53) ["ordering"]=> int(19) ["language"]=> string(1) "*" ["fieldparams"]=> object(Joomla\Registry\Registry)#11193 (3) { ["data":protected]=> object(stdClass)#11198 (2) { ["filter"]=> string(0) "" ["maxlength"]=> string(0) "" } ["initialized":protected]=> bool(true) ["separator":protected]=> string(1) "." } ["params"]=> object(Joomla\Registry\Registry)#11195 (3) { ["data":protected]=> object(stdClass)#11200 (15) { ["hint"]=> string(0) "" ["class"]=> string(0) "" ["label_class"]=> string(0) "" ["show_on"]=> string(0) "" ["showon"]=> string(0) "" ["render_class"]=> string(0) "" ["value_render_class"]=> string(0) "" ["showlabel"]=> string(1) "1" ["label_render_class"]=> string(0) "" ["display"]=> string(1) "2" ["prefix"]=> string(0) "" ["suffix"]=> string(0) "" ["layout"]=> string(0) "" ["display_readonly"]=> string(1) "2" ["searchindex"]=> string(1) "0" } ["initialized":protected]=> bool(true) ["separator":protected]=> string(1) "." } ["type"]=> string(4) "text" ["default_value"]=> NULL ["context"]=> string(19) "com_content.article" ["group_id"]=> int(4) ["label"]=> string(15) "Building Height" ["description"]=> string(0) "" ["required"]=> int(0) ["only_use_in_subform"]=> int(0) ["language_title"]=> NULL ["language_image"]=> NULL ["editor"]=> NULL ["access_level"]=> string(6) "Public" ["author_name"]=> string(6) "Gaynor" ["group_title"]=> string(16) "Property Details" ["group_access"]=> int(1) ["group_state"]=> int(1) ["group_note"]=> string(0) "" ["value"]=> string(0) "" ["rawvalue"]=> NULL } [27]=> object(stdClass)#11325 (33) { ["id"]=> int(27) ["title"]=> string(13) "Air Condition" ["name"]=> string(13) "air-condition" ["checked_out"]=> NULL ["checked_out_time"]=> NULL ["note"]=> string(0) "" ["state"]=> int(1) ["access"]=> int(1) ["created_time"]=> string(19) "2024-04-10 13:11:39" ["created_user_id"]=> int(53) ["ordering"]=> int(20) ["language"]=> string(1) "*" ["fieldparams"]=> object(Joomla\Registry\Registry)#11197 (3) { ["data":protected]=> object(stdClass)#11202 (2) { ["filter"]=> string(0) "" ["maxlength"]=> string(0) "" } ["initialized":protected]=> bool(true) ["separator":protected]=> string(1) "." } ["params"]=> object(Joomla\Registry\Registry)#11199 (3) { ["data":protected]=> object(stdClass)#11204 (15) { ["hint"]=> string(0) "" ["class"]=> string(0) "" ["label_class"]=> string(0) "" ["show_on"]=> string(0) "" ["showon"]=> string(0) "" ["render_class"]=> string(0) "" ["value_render_class"]=> string(0) "" ["showlabel"]=> string(1) "1" ["label_render_class"]=> string(0) "" ["display"]=> string(1) "2" ["prefix"]=> string(0) "" ["suffix"]=> string(0) "" ["layout"]=> string(0) "" ["display_readonly"]=> string(1) "2" ["searchindex"]=> string(1) "0" } ["initialized":protected]=> bool(true) ["separator":protected]=> string(1) "." } ["type"]=> string(4) "text" ["default_value"]=> NULL ["context"]=> string(19) "com_content.article" ["group_id"]=> int(4) ["label"]=> string(13) "Air Condition" ["description"]=> string(0) "" ["required"]=> int(0) ["only_use_in_subform"]=> int(0) ["language_title"]=> NULL ["language_image"]=> NULL ["editor"]=> NULL ["access_level"]=> string(6) "Public" ["author_name"]=> string(6) "Gaynor" ["group_title"]=> string(16) "Property Details" ["group_access"]=> int(1) ["group_state"]=> int(1) ["group_note"]=> string(0) "" ["value"]=> string(0) "" ["rawvalue"]=> NULL } [31]=> object(stdClass)#11323 (33) { ["id"]=> int(31) ["title"]=> string(17) "Property Location" ["name"]=> string(17) "property-location" ["checked_out"]=> NULL ["checked_out_time"]=> NULL ["note"]=> string(0) "" ["state"]=> int(1) ["access"]=> int(1) ["created_time"]=> string(19) "2024-04-10 13:12:54" ["created_user_id"]=> int(53) ["ordering"]=> int(21) ["language"]=> string(1) "*" ["fieldparams"]=> object(Joomla\Registry\Registry)#11201 (3) { ["data":protected]=> object(stdClass)#11206 (2) { ["filter"]=> string(0) "" ["maxlength"]=> string(0) "" } ["initialized":protected]=> bool(true) ["separator":protected]=> string(1) "." } ["params"]=> object(Joomla\Registry\Registry)#11203 (3) { ["data":protected]=> object(stdClass)#11208 (15) { ["hint"]=> string(0) "" ["class"]=> string(0) "" ["label_class"]=> string(0) "" ["show_on"]=> string(0) "" ["showon"]=> string(0) "" ["render_class"]=> string(0) "" ["value_render_class"]=> string(0) "" ["showlabel"]=> string(1) "1" ["label_render_class"]=> string(0) "" ["display"]=> string(1) "2" ["prefix"]=> string(0) "" ["suffix"]=> string(0) "" ["layout"]=> string(0) "" ["display_readonly"]=> string(1) "2" ["searchindex"]=> string(1) "0" } ["initialized":protected]=> bool(true) ["separator":protected]=> string(1) "." } ["type"]=> string(4) "text" ["default_value"]=> NULL ["context"]=> string(19) "com_content.article" ["group_id"]=> int(4) ["label"]=> string(17) "Property Location" ["description"]=> string(0) "" ["required"]=> int(0) ["only_use_in_subform"]=> int(0) ["language_title"]=> NULL ["language_image"]=> NULL ["editor"]=> NULL ["access_level"]=> string(6) "Public" ["author_name"]=> string(6) "Gaynor" ["group_title"]=> string(16) "Property Details" ["group_access"]=> int(1) ["group_state"]=> int(1) ["group_note"]=> string(0) "" ["value"]=> string(0) "" ["rawvalue"]=> NULL } [33]=> object(stdClass)#11326 (33) { ["id"]=> int(33) ["title"]=> string(14) "Position map y" ["name"]=> string(14) "position-map-y" ["checked_out"]=> NULL ["checked_out_time"]=> NULL ["note"]=> string(0) "" ["state"]=> int(1) ["access"]=> int(1) ["created_time"]=> string(19) "2024-04-10 13:13:25" ["created_user_id"]=> int(53) ["ordering"]=> int(22) ["language"]=> string(1) "*" ["fieldparams"]=> object(Joomla\Registry\Registry)#11205 (3) { ["data":protected]=> object(stdClass)#11210 (2) { ["filter"]=> string(0) "" ["maxlength"]=> string(0) "" } ["initialized":protected]=> bool(true) ["separator":protected]=> string(1) "." } ["params"]=> object(Joomla\Registry\Registry)#11207 (3) { ["data":protected]=> object(stdClass)#11212 (15) { ["hint"]=> string(0) "" ["class"]=> string(0) "" ["label_class"]=> string(0) "" ["show_on"]=> string(0) "" ["showon"]=> string(0) "" ["render_class"]=> string(0) "" ["value_render_class"]=> string(0) "" ["showlabel"]=> string(1) "1" ["label_render_class"]=> string(0) "" ["display"]=> string(1) "2" ["prefix"]=> string(0) "" ["suffix"]=> string(0) "" ["layout"]=> string(0) "" ["display_readonly"]=> string(1) "2" ["searchindex"]=> string(1) "0" } ["initialized":protected]=> bool(true) ["separator":protected]=> string(1) "." } ["type"]=> string(4) "text" ["default_value"]=> NULL ["context"]=> string(19) "com_content.article" ["group_id"]=> int(4) ["label"]=> string(14) "Position map y" ["description"]=> string(0) "" ["required"]=> int(0) ["only_use_in_subform"]=> int(0) ["language_title"]=> NULL ["language_image"]=> NULL ["editor"]=> NULL ["access_level"]=> string(6) "Public" ["author_name"]=> string(6) "Gaynor" ["group_title"]=> string(16) "Property Details" ["group_access"]=> int(1) ["group_state"]=> int(1) ["group_note"]=> string(0) "" ["value"]=> string(9) "-33.95659" ["rawvalue"]=> string(9) "-33.95659" } [35]=> object(stdClass)#11290 (33) { ["id"]=> int(35) ["title"]=> string(10) "Power Amps" ["name"]=> string(10) "power-amps" ["checked_out"]=> NULL ["checked_out_time"]=> NULL ["note"]=> string(0) "" ["state"]=> int(1) ["access"]=> int(1) ["created_time"]=> string(19) "2024-04-10 13:14:01" ["created_user_id"]=> int(53) ["ordering"]=> int(23) ["language"]=> string(1) "*" ["fieldparams"]=> object(Joomla\Registry\Registry)#11209 (3) { ["data":protected]=> object(stdClass)#11214 (2) { ["filter"]=> string(0) "" ["maxlength"]=> string(0) "" } ["initialized":protected]=> bool(true) ["separator":protected]=> string(1) "." } ["params"]=> object(Joomla\Registry\Registry)#11211 (3) { ["data":protected]=> object(stdClass)#11216 (15) { ["hint"]=> string(0) "" ["class"]=> string(0) "" ["label_class"]=> string(0) "" ["show_on"]=> string(0) "" ["showon"]=> string(0) "" ["render_class"]=> string(0) "" ["value_render_class"]=> string(0) "" ["showlabel"]=> string(1) "1" ["label_render_class"]=> string(0) "" ["display"]=> string(1) "2" ["prefix"]=> string(0) "" ["suffix"]=> string(0) "" ["layout"]=> string(0) "" ["display_readonly"]=> string(1) "2" ["searchindex"]=> string(1) "0" } ["initialized":protected]=> bool(true) ["separator":protected]=> string(1) "." } ["type"]=> string(4) "text" ["default_value"]=> NULL ["context"]=> string(19) "com_content.article" ["group_id"]=> int(4) ["label"]=> string(10) "Power Amps" ["description"]=> string(0) "" ["required"]=> int(0) ["only_use_in_subform"]=> int(0) ["language_title"]=> NULL ["language_image"]=> NULL ["editor"]=> NULL ["access_level"]=> string(6) "Public" ["author_name"]=> string(6) "Gaynor" ["group_title"]=> string(16) "Property Details" ["group_access"]=> int(1) ["group_state"]=> int(1) ["group_note"]=> string(0) "" ["value"]=> string(0) "" ["rawvalue"]=> NULL } [41]=> object(stdClass)#11288 (33) { ["id"]=> int(41) ["title"]=> string(22) "Floor Loading Capacity" ["name"]=> string(22) "floor-loading-capacity" ["checked_out"]=> NULL ["checked_out_time"]=> NULL ["note"]=> string(0) "" ["state"]=> int(1) ["access"]=> int(1) ["created_time"]=> string(19) "2024-04-10 13:16:04" ["created_user_id"]=> int(53) ["ordering"]=> int(24) ["language"]=> string(1) "*" ["fieldparams"]=> object(Joomla\Registry\Registry)#11213 (3) { ["data":protected]=> object(stdClass)#11218 (2) { ["filter"]=> string(0) "" ["maxlength"]=> string(0) "" } ["initialized":protected]=> bool(true) ["separator":protected]=> string(1) "." } ["params"]=> object(Joomla\Registry\Registry)#11215 (3) { ["data":protected]=> object(stdClass)#11220 (15) { ["hint"]=> string(0) "" ["class"]=> string(0) "" ["label_class"]=> string(0) "" ["show_on"]=> string(0) "" ["showon"]=> string(0) "" ["render_class"]=> string(0) "" ["value_render_class"]=> string(0) "" ["showlabel"]=> string(1) "1" ["label_render_class"]=> string(0) "" ["display"]=> string(1) "2" ["prefix"]=> string(0) "" ["suffix"]=> string(0) "" ["layout"]=> string(0) "" ["display_readonly"]=> string(1) "2" ["searchindex"]=> string(1) "0" } ["initialized":protected]=> bool(true) ["separator":protected]=> string(1) "." } ["type"]=> string(4) "text" ["default_value"]=> NULL ["context"]=> string(19) "com_content.article" ["group_id"]=> int(4) ["label"]=> string(22) "Floor Loading Capacity" ["description"]=> string(0) "" ["required"]=> int(0) ["only_use_in_subform"]=> int(0) ["language_title"]=> NULL ["language_image"]=> NULL ["editor"]=> NULL ["access_level"]=> string(6) "Public" ["author_name"]=> string(6) "Gaynor" ["group_title"]=> string(16) "Property Details" ["group_access"]=> int(1) ["group_state"]=> int(1) ["group_note"]=> string(0) "" ["value"]=> string(0) "" ["rawvalue"]=> NULL } [42]=> object(stdClass)#11289 (33) { ["id"]=> int(42) ["title"]=> string(17) "Office space size" ["name"]=> string(17) "office-space-size" ["checked_out"]=> NULL ["checked_out_time"]=> NULL ["note"]=> string(0) "" ["state"]=> int(1) ["access"]=> int(1) ["created_time"]=> string(19) "2024-04-10 13:16:27" ["created_user_id"]=> int(53) ["ordering"]=> int(25) ["language"]=> string(1) "*" ["fieldparams"]=> object(Joomla\Registry\Registry)#11217 (3) { ["data":protected]=> object(stdClass)#11222 (2) { ["filter"]=> string(0) "" ["maxlength"]=> string(0) "" } ["initialized":protected]=> bool(true) ["separator":protected]=> string(1) "." } ["params"]=> object(Joomla\Registry\Registry)#11219 (3) { ["data":protected]=> object(stdClass)#11224 (15) { ["hint"]=> string(0) "" ["class"]=> string(0) "" ["label_class"]=> string(0) "" ["show_on"]=> string(0) "" ["showon"]=> string(0) "" ["render_class"]=> string(0) "" ["value_render_class"]=> string(0) "" ["showlabel"]=> string(1) "1" ["label_render_class"]=> string(0) "" ["display"]=> string(1) "2" ["prefix"]=> string(0) "" ["suffix"]=> string(0) "" ["layout"]=> string(0) "" ["display_readonly"]=> string(1) "2" ["searchindex"]=> string(1) "0" } ["initialized":protected]=> bool(true) ["separator":protected]=> string(1) "." } ["type"]=> string(4) "text" ["default_value"]=> NULL ["context"]=> string(19) "com_content.article" ["group_id"]=> int(4) ["label"]=> string(17) "Office space size" ["description"]=> string(0) "" ["required"]=> int(0) ["only_use_in_subform"]=> int(0) ["language_title"]=> NULL ["language_image"]=> NULL ["editor"]=> NULL ["access_level"]=> string(6) "Public" ["author_name"]=> string(6) "Gaynor" ["group_title"]=> string(16) "Property Details" ["group_access"]=> int(1) ["group_state"]=> int(1) ["group_note"]=> string(0) "" ["value"]=> string(0) "" ["rawvalue"]=> NULL } [45]=> object(stdClass)#11287 (33) { ["id"]=> int(45) ["title"]=> string(11) "Retail Size" ["name"]=> string(11) "retail-size" ["checked_out"]=> NULL ["checked_out_time"]=> NULL ["note"]=> string(0) "" ["state"]=> int(1) ["access"]=> int(1) ["created_time"]=> string(19) "2024-04-10 13:17:17" ["created_user_id"]=> int(53) ["ordering"]=> int(26) ["language"]=> string(1) "*" ["fieldparams"]=> object(Joomla\Registry\Registry)#11221 (3) { ["data":protected]=> object(stdClass)#11226 (2) { ["filter"]=> string(0) "" ["maxlength"]=> string(0) "" } ["initialized":protected]=> bool(true) ["separator":protected]=> string(1) "." } ["params"]=> object(Joomla\Registry\Registry)#11223 (3) { ["data":protected]=> object(stdClass)#11228 (15) { ["hint"]=> string(0) "" ["class"]=> string(0) "" ["label_class"]=> string(0) "" ["show_on"]=> string(0) "" ["showon"]=> string(0) "" ["render_class"]=> string(0) "" ["value_render_class"]=> string(0) "" ["showlabel"]=> string(1) "1" ["label_render_class"]=> string(0) "" ["display"]=> string(1) "2" ["prefix"]=> string(0) "" ["suffix"]=> string(0) "" ["layout"]=> string(0) "" ["display_readonly"]=> string(1) "2" ["searchindex"]=> string(1) "0" } ["initialized":protected]=> bool(true) ["separator":protected]=> string(1) "." } ["type"]=> string(4) "text" ["default_value"]=> NULL ["context"]=> string(19) "com_content.article" ["group_id"]=> int(4) ["label"]=> string(11) "Retail Size" ["description"]=> string(0) "" ["required"]=> int(0) ["only_use_in_subform"]=> int(0) ["language_title"]=> NULL ["language_image"]=> NULL ["editor"]=> NULL ["access_level"]=> string(6) "Public" ["author_name"]=> string(6) "Gaynor" ["group_title"]=> string(16) "Property Details" ["group_access"]=> int(1) ["group_state"]=> int(1) ["group_note"]=> string(0) "" ["value"]=> string(0) "" ["rawvalue"]=> NULL } [46]=> object(stdClass)#11332 (33) { ["id"]=> int(46) ["title"]=> string(14) "Warehouse Size" ["name"]=> string(14) "warehouse-size" ["checked_out"]=> NULL ["checked_out_time"]=> NULL ["note"]=> string(0) "" ["state"]=> int(1) ["access"]=> int(1) ["created_time"]=> string(19) "2024-04-10 13:17:40" ["created_user_id"]=> int(53) ["ordering"]=> int(27) ["language"]=> string(1) "*" ["fieldparams"]=> object(Joomla\Registry\Registry)#11225 (3) { ["data":protected]=> object(stdClass)#11230 (2) { ["filter"]=> string(0) "" ["maxlength"]=> string(0) "" } ["initialized":protected]=> bool(true) ["separator":protected]=> string(1) "." } ["params"]=> object(Joomla\Registry\Registry)#11227 (3) { ["data":protected]=> object(stdClass)#11232 (15) { ["hint"]=> string(0) "" ["class"]=> string(0) "" ["label_class"]=> string(0) "" ["show_on"]=> string(0) "" ["showon"]=> string(0) "" ["render_class"]=> string(0) "" ["value_render_class"]=> string(0) "" ["showlabel"]=> string(1) "1" ["label_render_class"]=> string(0) "" ["display"]=> string(1) "2" ["prefix"]=> string(0) "" ["suffix"]=> string(0) "" ["layout"]=> string(0) "" ["display_readonly"]=> string(1) "2" ["searchindex"]=> string(1) "0" } ["initialized":protected]=> bool(true) ["separator":protected]=> string(1) "." } ["type"]=> string(4) "text" ["default_value"]=> NULL ["context"]=> string(19) "com_content.article" ["group_id"]=> int(4) ["label"]=> string(14) "Warehouse Size" ["description"]=> string(0) "" ["required"]=> int(0) ["only_use_in_subform"]=> int(0) ["language_title"]=> NULL ["language_image"]=> NULL ["editor"]=> NULL ["access_level"]=> string(6) "Public" ["author_name"]=> string(6) "Gaynor" ["group_title"]=> string(16) "Property Details" ["group_access"]=> int(1) ["group_state"]=> int(1) ["group_note"]=> string(0) "" ["value"]=> string(0) "" ["rawvalue"]=> NULL } [47]=> object(stdClass)#11330 (33) { ["id"]=> int(47) ["title"]=> string(9) "Yard Size" ["name"]=> string(9) "yard-size" ["checked_out"]=> NULL ["checked_out_time"]=> NULL ["note"]=> string(0) "" ["state"]=> int(1) ["access"]=> int(1) ["created_time"]=> string(19) "2024-04-10 13:17:52" ["created_user_id"]=> int(53) ["ordering"]=> int(28) ["language"]=> string(1) "*" ["fieldparams"]=> object(Joomla\Registry\Registry)#11229 (3) { ["data":protected]=> object(stdClass)#11234 (2) { ["filter"]=> string(0) "" ["maxlength"]=> string(0) "" } ["initialized":protected]=> bool(true) ["separator":protected]=> string(1) "." } ["params"]=> object(Joomla\Registry\Registry)#11231 (3) { ["data":protected]=> object(stdClass)#11236 (15) { ["hint"]=> string(0) "" ["class"]=> string(0) "" ["label_class"]=> string(0) "" ["show_on"]=> string(0) "" ["showon"]=> string(0) "" ["render_class"]=> string(0) "" ["value_render_class"]=> string(0) "" ["showlabel"]=> string(1) "1" ["label_render_class"]=> string(0) "" ["display"]=> string(1) "2" ["prefix"]=> string(0) "" ["suffix"]=> string(0) "" ["layout"]=> string(0) "" ["display_readonly"]=> string(1) "2" ["searchindex"]=> string(1) "0" } ["initialized":protected]=> bool(true) ["separator":protected]=> string(1) "." } ["type"]=> string(4) "text" ["default_value"]=> NULL ["context"]=> string(19) "com_content.article" ["group_id"]=> int(4) ["label"]=> string(9) "Yard Size" ["description"]=> string(0) "" ["required"]=> int(0) ["only_use_in_subform"]=> int(0) ["language_title"]=> NULL ["language_image"]=> NULL ["editor"]=> NULL ["access_level"]=> string(6) "Public" ["author_name"]=> string(6) "Gaynor" ["group_title"]=> string(16) "Property Details" ["group_access"]=> int(1) ["group_state"]=> int(1) ["group_note"]=> string(0) "" ["value"]=> string(0) "" ["rawvalue"]=> NULL } [36]=> object(stdClass)#11329 (33) { ["id"]=> int(36) ["title"]=> string(8) "Video ID" ["name"]=> string(8) "video-id" ["checked_out"]=> NULL ["checked_out_time"]=> NULL ["note"]=> string(0) "" ["state"]=> int(1) ["access"]=> int(1) ["created_time"]=> string(19) "2024-04-10 13:14:35" ["created_user_id"]=> int(53) ["ordering"]=> int(29) ["language"]=> string(1) "*" ["fieldparams"]=> object(Joomla\Registry\Registry)#11233 (3) { ["data":protected]=> object(stdClass)#11238 (2) { ["filter"]=> string(0) "" ["maxlength"]=> string(0) "" } ["initialized":protected]=> bool(true) ["separator":protected]=> string(1) "." } ["params"]=> object(Joomla\Registry\Registry)#11235 (3) { ["data":protected]=> object(stdClass)#11240 (15) { ["hint"]=> string(0) "" ["class"]=> string(0) "" ["label_class"]=> string(0) "" ["show_on"]=> string(0) "" ["showon"]=> string(0) "" ["render_class"]=> string(0) "" ["value_render_class"]=> string(0) "" ["showlabel"]=> string(1) "1" ["label_render_class"]=> string(0) "" ["display"]=> string(1) "2" ["prefix"]=> string(0) "" ["suffix"]=> string(0) "" ["layout"]=> string(0) "" ["display_readonly"]=> string(1) "2" ["searchindex"]=> string(1) "0" } ["initialized":protected]=> bool(true) ["separator":protected]=> string(1) "." } ["type"]=> string(4) "text" ["default_value"]=> NULL ["context"]=> string(19) "com_content.article" ["group_id"]=> int(4) ["label"]=> string(8) "Video ID" ["description"]=> string(0) "" ["required"]=> int(0) ["only_use_in_subform"]=> int(0) ["language_title"]=> NULL ["language_image"]=> NULL ["editor"]=> NULL ["access_level"]=> string(6) "Public" ["author_name"]=> string(6) "Gaynor" ["group_title"]=> string(16) "Property Details" ["group_access"]=> int(1) ["group_state"]=> int(1) ["group_note"]=> string(0) "" ["value"]=> string(11) "Wk50F79QNZs" ["rawvalue"]=> string(11) "Wk50F79QNZs" } [49]=> object(stdClass)#11294 (33) { ["id"]=> int(49) ["title"]=> string(14) "Position map x" ["name"]=> string(14) "position-map-x" ["checked_out"]=> NULL ["checked_out_time"]=> NULL ["note"]=> string(0) "" ["state"]=> int(1) ["access"]=> int(1) ["created_time"]=> string(19) "2024-04-12 11:09:48" ["created_user_id"]=> int(53) ["ordering"]=> int(30) ["language"]=> string(1) "*" ["fieldparams"]=> object(Joomla\Registry\Registry)#11237 (3) { ["data":protected]=> object(stdClass)#11242 (2) { ["filter"]=> string(0) "" ["maxlength"]=> string(0) "" } ["initialized":protected]=> bool(true) ["separator":protected]=> string(1) "." } ["params"]=> object(Joomla\Registry\Registry)#11239 (3) { ["data":protected]=> object(stdClass)#11244 (15) { ["hint"]=> string(0) "" ["class"]=> string(0) "" ["label_class"]=> string(0) "" ["show_on"]=> string(0) "" ["showon"]=> string(0) "" ["render_class"]=> string(0) "" ["value_render_class"]=> string(0) "" ["showlabel"]=> string(1) "1" ["label_render_class"]=> string(0) "" ["display"]=> string(1) "2" ["prefix"]=> string(0) "" ["suffix"]=> string(0) "" ["layout"]=> string(0) "" ["display_readonly"]=> string(1) "2" ["searchindex"]=> string(1) "0" } ["initialized":protected]=> bool(true) ["separator":protected]=> string(1) "." } ["type"]=> string(4) "text" ["default_value"]=> NULL ["context"]=> string(19) "com_content.article" ["group_id"]=> int(4) ["label"]=> string(14) "Position map x" ["description"]=> string(0) "" ["required"]=> int(0) ["only_use_in_subform"]=> int(0) ["language_title"]=> NULL ["language_image"]=> NULL ["editor"]=> NULL ["access_level"]=> string(6) "Public" ["author_name"]=> string(6) "Gaynor" ["group_title"]=> string(16) "Property Details" ["group_access"]=> int(1) ["group_state"]=> int(1) ["group_note"]=> string(0) "" ["value"]=> string(8) "18.68744" ["rawvalue"]=> string(8) "18.68744" } [37]=> object(stdClass)#11339 (33) { ["id"]=> int(37) ["title"]=> string(12) "Retail Price" ["name"]=> string(12) "retail-price" ["checked_out"]=> NULL ["checked_out_time"]=> NULL ["note"]=> string(0) "" ["state"]=> int(1) ["access"]=> int(1) ["created_time"]=> string(19) "2024-04-10 13:14:56" ["created_user_id"]=> int(53) ["ordering"]=> int(34) ["language"]=> string(1) "*" ["fieldparams"]=> object(Joomla\Registry\Registry)#11241 (3) { ["data":protected]=> object(stdClass)#11246 (2) { ["filter"]=> string(0) "" ["maxlength"]=> string(0) "" } ["initialized":protected]=> bool(true) ["separator":protected]=> string(1) "." } ["params"]=> object(Joomla\Registry\Registry)#11243 (3) { ["data":protected]=> object(stdClass)#11248 (15) { ["hint"]=> string(0) "" ["class"]=> string(0) "" ["label_class"]=> string(0) "" ["show_on"]=> string(0) "" ["showon"]=> string(0) "" ["render_class"]=> string(0) "" ["value_render_class"]=> string(0) "" ["showlabel"]=> string(1) "1" ["label_render_class"]=> string(0) "" ["display"]=> string(1) "2" ["prefix"]=> string(0) "" ["suffix"]=> string(0) "" ["layout"]=> string(0) "" ["display_readonly"]=> string(1) "2" ["searchindex"]=> string(1) "0" } ["initialized":protected]=> bool(true) ["separator":protected]=> string(1) "." } ["type"]=> string(4) "text" ["default_value"]=> NULL ["context"]=> string(19) "com_content.article" ["group_id"]=> int(3) ["label"]=> string(12) "Retail Price" ["description"]=> string(0) "" ["required"]=> int(0) ["only_use_in_subform"]=> int(0) ["language_title"]=> NULL ["language_image"]=> NULL ["editor"]=> NULL ["access_level"]=> string(6) "Public" ["author_name"]=> string(6) "Gaynor" ["group_title"]=> string(15) "Property Fields" ["group_access"]=> int(1) ["group_state"]=> int(1) ["group_note"]=> string(0) "" ["value"]=> string(0) "" ["rawvalue"]=> NULL } [24]=> object(stdClass)#11337 (33) { ["id"]=> int(24) ["title"]=> string(4) "Note" ["name"]=> string(4) "note" ["checked_out"]=> NULL ["checked_out_time"]=> NULL ["note"]=> string(0) "" ["state"]=> int(1) ["access"]=> int(1) ["created_time"]=> string(19) "2024-04-10 13:10:31" ["created_user_id"]=> int(53) ["ordering"]=> int(36) ["language"]=> string(1) "*" ["fieldparams"]=> object(Joomla\Registry\Registry)#11245 (3) { ["data":protected]=> object(stdClass)#11250 (2) { ["filter"]=> string(0) "" ["maxlength"]=> string(0) "" } ["initialized":protected]=> bool(true) ["separator":protected]=> string(1) "." } ["params"]=> object(Joomla\Registry\Registry)#11247 (3) { ["data":protected]=> object(stdClass)#11252 (15) { ["hint"]=> string(0) "" ["class"]=> string(0) "" ["label_class"]=> string(0) "" ["show_on"]=> string(0) "" ["showon"]=> string(0) "" ["render_class"]=> string(0) "" ["value_render_class"]=> string(0) "" ["showlabel"]=> string(1) "1" ["label_render_class"]=> string(0) "" ["display"]=> string(1) "2" ["prefix"]=> string(0) "" ["suffix"]=> string(0) "" ["layout"]=> string(0) "" ["display_readonly"]=> string(1) "2" ["searchindex"]=> string(1) "0" } ["initialized":protected]=> bool(true) ["separator":protected]=> string(1) "." } ["type"]=> string(4) "text" ["default_value"]=> NULL ["context"]=> string(19) "com_content.article" ["group_id"]=> int(4) ["label"]=> string(4) "Note" ["description"]=> string(0) "" ["required"]=> int(0) ["only_use_in_subform"]=> int(0) ["language_title"]=> NULL ["language_image"]=> NULL ["editor"]=> NULL ["access_level"]=> string(6) "Public" ["author_name"]=> string(6) "Gaynor" ["group_title"]=> string(16) "Property Details" ["group_access"]=> int(1) ["group_state"]=> int(1) ["group_note"]=> string(0) "" ["value"]=> string(0) "" ["rawvalue"]=> NULL } [43]=> object(stdClass)#11338 (33) { ["id"]=> int(43) ["title"]=> string(24) "Office space total price" ["name"]=> string(24) "office-space-total-price" ["checked_out"]=> NULL ["checked_out_time"]=> NULL ["note"]=> string(0) "" ["state"]=> int(1) ["access"]=> int(1) ["created_time"]=> string(19) "2024-04-10 13:16:50" ["created_user_id"]=> int(53) ["ordering"]=> int(37) ["language"]=> string(1) "*" ["fieldparams"]=> object(Joomla\Registry\Registry)#11249 (3) { ["data":protected]=> object(stdClass)#11254 (2) { ["filter"]=> string(0) "" ["maxlength"]=> string(0) "" } ["initialized":protected]=> bool(true) ["separator":protected]=> string(1) "." } ["params"]=> object(Joomla\Registry\Registry)#11251 (3) { ["data":protected]=> object(stdClass)#11256 (15) { ["hint"]=> string(0) "" ["class"]=> string(0) "" ["label_class"]=> string(0) "" ["show_on"]=> string(0) "" ["showon"]=> string(0) "" ["render_class"]=> string(0) "" ["value_render_class"]=> string(0) "" ["showlabel"]=> string(1) "1" ["label_render_class"]=> string(0) "" ["display"]=> string(1) "2" ["prefix"]=> string(0) "" ["suffix"]=> string(0) "" ["layout"]=> string(0) "" ["display_readonly"]=> string(1) "2" ["searchindex"]=> string(1) "0" } ["initialized":protected]=> bool(true) ["separator":protected]=> string(1) "." } ["type"]=> string(4) "text" ["default_value"]=> NULL ["context"]=> string(19) "com_content.article" ["group_id"]=> int(3) ["label"]=> string(24) "Office space total price" ["description"]=> string(0) "" ["required"]=> int(0) ["only_use_in_subform"]=> int(0) ["language_title"]=> NULL ["language_image"]=> NULL ["editor"]=> NULL ["access_level"]=> string(6) "Public" ["author_name"]=> string(6) "Gaynor" ["group_title"]=> string(15) "Property Fields" ["group_access"]=> int(1) ["group_state"]=> int(1) ["group_note"]=> string(0) "" ["value"]=> string(0) "" ["rawvalue"]=> NULL } [44]=> object(stdClass)#11336 (33) { ["id"]=> int(44) ["title"]=> string(12) "Virtual Tour" ["name"]=> string(12) "virtual-tour" ["checked_out"]=> NULL ["checked_out_time"]=> NULL ["note"]=> string(0) "" ["state"]=> int(1) ["access"]=> int(1) ["created_time"]=> string(19) "2024-04-10 13:17:02" ["created_user_id"]=> int(53) ["ordering"]=> int(38) ["language"]=> string(1) "*" ["fieldparams"]=> object(Joomla\Registry\Registry)#11253 (3) { ["data":protected]=> object(stdClass)#11258 (2) { ["filter"]=> string(0) "" ["maxlength"]=> string(0) "" } ["initialized":protected]=> bool(true) ["separator":protected]=> string(1) "." } ["params"]=> object(Joomla\Registry\Registry)#11255 (3) { ["data":protected]=> object(stdClass)#11260 (15) { ["hint"]=> string(0) "" ["class"]=> string(0) "" ["label_class"]=> string(0) "" ["show_on"]=> string(0) "" ["showon"]=> string(0) "" ["render_class"]=> string(0) "" ["value_render_class"]=> string(0) "" ["showlabel"]=> string(1) "1" ["label_render_class"]=> string(0) "" ["display"]=> string(1) "2" ["prefix"]=> string(0) "" ["suffix"]=> string(0) "" ["layout"]=> string(0) "" ["display_readonly"]=> string(1) "2" ["searchindex"]=> string(1) "0" } ["initialized":protected]=> bool(true) ["separator":protected]=> string(1) "." } ["type"]=> string(4) "text" ["default_value"]=> NULL ["context"]=> string(19) "com_content.article" ["group_id"]=> int(3) ["label"]=> string(12) "Virtual Tour" ["description"]=> string(0) "" ["required"]=> int(0) ["only_use_in_subform"]=> int(0) ["language_title"]=> NULL ["language_image"]=> NULL ["editor"]=> NULL ["access_level"]=> string(6) "Public" ["author_name"]=> string(6) "Gaynor" ["group_title"]=> string(15) "Property Fields" ["group_access"]=> int(1) ["group_state"]=> int(1) ["group_note"]=> string(0) "" ["value"]=> string(0) "" ["rawvalue"]=> NULL } [29]=> object(stdClass)#11346 (33) { ["id"]=> int(29) ["title"]=> string(11) "Description" ["name"]=> string(11) "description" ["checked_out"]=> NULL ["checked_out_time"]=> NULL ["note"]=> string(0) "" ["state"]=> int(1) ["access"]=> int(1) ["created_time"]=> string(19) "2024-04-10 13:12:11" ["created_user_id"]=> int(53) ["ordering"]=> int(39) ["language"]=> string(1) "*" ["fieldparams"]=> object(Joomla\Registry\Registry)#11257 (3) { ["data":protected]=> object(stdClass)#11262 (2) { ["filter"]=> string(0) "" ["maxlength"]=> string(0) "" } ["initialized":protected]=> bool(true) ["separator":protected]=> string(1) "." } ["params"]=> object(Joomla\Registry\Registry)#11259 (3) { ["data":protected]=> object(stdClass)#11264 (15) { ["hint"]=> string(0) "" ["class"]=> string(0) "" ["label_class"]=> string(0) "" ["show_on"]=> string(0) "" ["showon"]=> string(0) "" ["render_class"]=> string(0) "" ["value_render_class"]=> string(0) "" ["showlabel"]=> string(1) "1" ["label_render_class"]=> string(0) "" ["display"]=> string(1) "2" ["prefix"]=> string(0) "" ["suffix"]=> string(0) "" ["layout"]=> string(0) "" ["display_readonly"]=> string(1) "2" ["searchindex"]=> string(1) "0" } ["initialized":protected]=> bool(true) ["separator":protected]=> string(1) "." } ["type"]=> string(4) "text" ["default_value"]=> NULL ["context"]=> string(19) "com_content.article" ["group_id"]=> int(3) ["label"]=> string(11) "Description" ["description"]=> string(0) "" ["required"]=> int(0) ["only_use_in_subform"]=> int(0) ["language_title"]=> NULL ["language_image"]=> NULL ["editor"]=> NULL ["access_level"]=> string(6) "Public" ["author_name"]=> string(6) "Gaynor" ["group_title"]=> string(15) "Property Fields" ["group_access"]=> int(1) ["group_state"]=> int(1) ["group_note"]=> string(0) "" ["value"]=> string(2) "m2" ["rawvalue"]=> string(2) "m2" } [18]=> object(stdClass)#11343 (33) { ["id"]=> int(18) ["title"]=> string(9) "Plot Size" ["name"]=> string(9) "plot-size" ["checked_out"]=> NULL ["checked_out_time"]=> NULL ["note"]=> string(0) "" ["state"]=> int(1) ["access"]=> int(1) ["created_time"]=> string(19) "2024-04-10 13:03:12" ["created_user_id"]=> int(53) ["ordering"]=> int(44) ["language"]=> string(1) "*" ["fieldparams"]=> object(Joomla\Registry\Registry)#11261 (3) { ["data":protected]=> object(stdClass)#11266 (2) { ["filter"]=> string(0) "" ["maxlength"]=> string(0) "" } ["initialized":protected]=> bool(true) ["separator":protected]=> string(1) "." } ["params"]=> object(Joomla\Registry\Registry)#11263 (3) { ["data":protected]=> object(stdClass)#11268 (15) { ["hint"]=> string(0) "" ["class"]=> string(0) "" ["label_class"]=> string(0) "" ["show_on"]=> string(0) "" ["showon"]=> string(0) "" ["render_class"]=> string(0) "" ["value_render_class"]=> string(0) "" ["showlabel"]=> string(1) "1" ["label_render_class"]=> string(0) "" ["display"]=> string(1) "2" ["prefix"]=> string(0) "" ["suffix"]=> string(0) "" ["layout"]=> string(0) "" ["display_readonly"]=> string(1) "2" ["searchindex"]=> string(1) "0" } ["initialized":protected]=> bool(true) ["separator":protected]=> string(1) "." } ["type"]=> string(4) "text" ["default_value"]=> NULL ["context"]=> string(19) "com_content.article" ["group_id"]=> int(4) ["label"]=> string(9) "Plot Size" ["description"]=> string(0) "" ["required"]=> int(0) ["only_use_in_subform"]=> int(0) ["language_title"]=> NULL ["language_image"]=> NULL ["editor"]=> NULL ["access_level"]=> string(6) "Public" ["author_name"]=> string(6) "Gaynor" ["group_title"]=> string(16) "Property Details" ["group_access"]=> int(1) ["group_state"]=> int(1) ["group_note"]=> string(0) "" ["value"]=> string(0) "" ["rawvalue"]=> NULL } } ["contactid"]=> int(93) ["webpage"]=> string(46) "https://api-prop.plum.systems/index.php/agents" ["email"]=> string(23) "kevin@apiproperty.co.za" ["contact_link"]=> string(34) "/index.php/agents/93-kevin-barrett" ["event"]=> object(stdClass)#10891 (3) { ["afterDisplayTitle"]=> string(0) "" ["beforeDisplayContent"]=> string(4729) "
  • Area Id: 17443
  • City Name: Blackheath Industrial
  • CityID: 456
  • Type Of Property: Wharehouse
  • Usage Type: Industrial
  • Price on Application: false
  • Branch: Cape Town
  • status: Active
  • GROSS LETTABLE AREA: 21703
  • WEB REFERENCE: KB3065AIEB1
  • Value of Area: m2
  • Building size: 3065
  • Erf size: 21703
  • Gross Monthly Rental: R 281980
  • Currency: R
  • Sale Price: R 92 /m²
  • Price: R 92 mo
  • Power Phase: Yes
  • Value of Price: month
  • Availability of amps: Yes
  • Fire systems: No
  • Latitude/Longitude: -33.95659,18.68744
  • Alternative water supply: {{alternativeWaterSupply}}
  • Rent or Sale: For Rent
  • Alternative power supply: {{alternativePowerSupply}}
  • Floor Size: 3065
  • Position map y: -33.95659
  • Video ID: Wk50F79QNZs
  • Position map x: 18.68744
  • Description: m2
" ["afterDisplayContent"]=> string(0) "" } ["prev"]=> string(71) "index.php?option=com_content&view=article&id=2819:kb14028aie&catid=2465" ["next"]=> string(72) "index.php?option=com_content&view=article&id=2759:kb3042aieb3&catid=2465" ["prev_label"]=> string(4) "Prev" ["next_label"]=> string(4) "Next" ["pagination"]=> string(1071) " " ["paginationposition"]=> string(1) "1" ["paginationrelative"]=> int(0) }
Arterial Industrial Park enjoys a prime location along Stellenbosch Arterial Road, at the heart of the well-established Blackheath industrial area. This modern, high-spec industrial park boasts a variety of advanced industrial units, designed to accommodate a wide range of manufacturing, storage, and logistical needs. With its strategic positioning, the park offers excellent accessibility to key arterial routes such as the R300, N1, N2, and Cape Town International Airport.Spanning a total gross leasable area of approximately 40,000sqm, the development offers unit sizes ranging from 1,862sqm to 12,000sqm, with flexible design options to suit different operational requirements. The park prioritizes security with 24-hour surveillance, controlled access, and a guardhouse, ensuring a secure environment. The units are thoughtfully planned to maximize the office-to-warehouse ratio, creating efficient and functional spaces. Generous yard areas enable easy movement and storage, complemented by fire sprinklers that meet safety standards and a minimum eaves height of 9m for ample vertical space. Units also feature a mix of on-grade and dock-height roller shutter doors for smooth loading and unloading operations.The building is equipped with a 250-amp three-phase power supply and remote metering for consistent electricity provision. Fully sprinkler-protected warehouses adhere to ASIB standards and accommodate free-standing category III goods. Concrete hardstands and a minimum yard depth of 35,320m² provide ample external operational space. The perimeter walls are built with Tilt-up or Bagged Block Work, reinforced with drywall for added safety. Energy-efficient features such as photovoltaic solar panels, LED lighting, and mechanical ventilation emphasize the development's commitment to sustainability.

Erf No: KB3065AIEB1

Price: R 92.00
Sale Price: R 92.00/m²
Gross Monthly Rental: R 281,980.00

Information of Area or Location

Location: Blackheath Industrial
OUR EXCLUSIVE COLLECTIONS

Related Property